Цвет в квадрате: В лучших традициях сегодняшнего дня

4-комнатная • • 09.12.2016
Несколько авторов Свернуть
Александр Молчанов Архитектор, декоратор
Винченцо Стридаккио Архитектор, декоратор
Михаил Балабанов Архитектор, декоратор
Надежда Савина Архитектор, декоратор
Татьяна Орлова Архитектор, декоратор
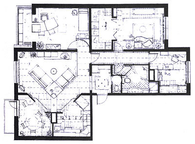
Дизайн-проект перепланировки блока одно- и двухкомнатной квартир общей площадью 92м2 в доме серии КОПЭ.

Семь вариантов перепланировки блока одно- и двухкомнатных квартир общей площадью 92 м2 в панельном доме серии КОПЭ. Читать далее...

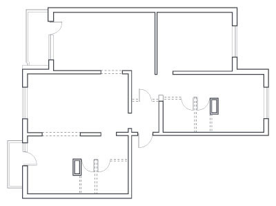
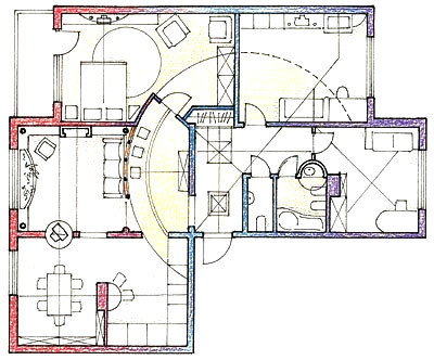
План
Комната Было Стало
Общая площадь 92 м2
Количество комнат 3 4
Высота потолка 2,64 м
Зона кухни-ванной комнаты 19,7 м2
Жилая комната 14,6 м2
Прихожая 5,5 м2
Редакция предупреждает, что в соответствии с Жилищным кодексом РФ требуется согласование проводимых переустройств и перепланировок.
Авторы
Александр Молчанов Архитектор, декоратор
+ 6
Винченцо Стридаккио Архитектор, декоратор
+ 1
Михаил Балабанов Архитектор, декоратор
+ 3
Надежда Савина Архитектор, декоратор
Татьяна Орлова Архитектор, декоратор
+ 7
Несколько авторов Свернуть
Если это ваш проект, пожалуйста, свяжитесь с нами по адресу ivd@burda.ru, указав в письме ссылку на проект.
Квартира 4-комнатная
Комментарии (0)

Пока комментариев нет. Начните обсуждение!

Похожие перепланировки