Холодный дом с металлом и змеями

2-комнатная • II-68 • 09.12.2016
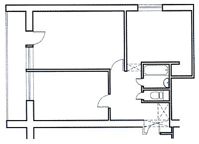
Двухкомнатная квартира общей площадью 50,2м2 в типовом доме серии II-68. Реализованный проект.
План
Комната Было Стало
Общая площадь 50,2 м2
Жилая площадь 28,2 м2
Количество комнат 2 2
Высота потолка 2,48 м 2,2 м
Редакция предупреждает, что в соответствии с Жилищным кодексом РФ требуется согласование проводимых переустройств и перепланировок.
Авторы
Если это ваш проект, пожалуйста, свяжитесь с нами по адресу ivd@burda.ru, указав в письме ссылку на проект.
Квартира 2-комнатная
Комментарии (0)

Пока комментариев нет. Начните обсуждение!