Серия II-49: Движение света
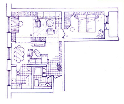
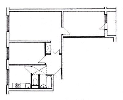
Шесть вариантов перепланировки трехкомнатной квартиры общей площадью 59,78 м2 в панельном доме серии

Комната | Было | Стало |
---|---|---|
Общая площадь | 59,78 м2 | |
Жилая площадь | 43,09 м2 | |
Количество комнат | 3 | 3 |
Высота потолка | 2,64 м | – |
Кухня | 5,94 м2 | – |
Жилая комната | 12,62 м2 | – |
Бильярдная | 3 м2 | – |
-
Что нужно, чтобы инспекция согласовала такие перепланировки? Отказ от газовой плиты?
-
Дизайн красивый, но не реализуемый...ни одна инспекция его не согласует...
-
Дизайн красивый, но не реализуемый...ни одна инспекция его не согласует...