Каждому — по потребностям: Свет и форма
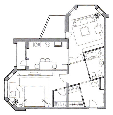
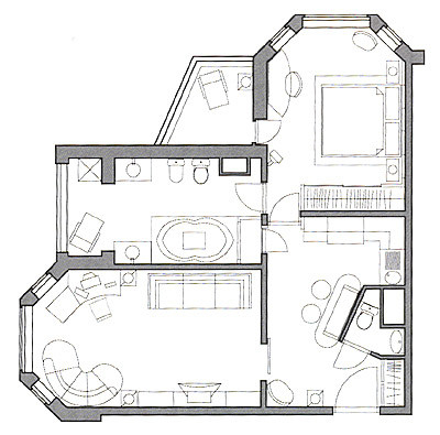
                | Комната | Было | Стало | 
|---|---|---|
| Общая площадь | 62,05 м2 | 62,05 м2 | 
| Жилая площадь | 34,04 м2 | 45,55 м2 | 
| Количество комнат | 2 | 3 | 
| Прихожая | 10,45 м2 | 5,9 м2 | 
| Кухня | 10,15 м2 | 4,6 м2 | 
| Ванная комната | 3,33 м2 | – | 
| Туалет | 1,42 м2 | – | 
| Жилая комната | 14,65 м2 | – | 
| Лоджия | 2,66 м2 | – | 
| Балкон | 3,63 м2 | 3,63 м2 | 
| Гостиная | – | 18,2 м2 | 
| Санузел | – | 6 м2 | 
| Спальня | – | 14,6 м2 | 
| Детская | – | 12,75 м2 | 
                                    
                                
                                    
                                
                                    
                                
                                    
                                
                                    
                                
                                    
                                
                                    
                                
                                    
                                
                                    
                                
                                    
                                
                                    
                                
                        
                        
                        
                        
                        
                        
                        
                        
                        
                                
                                
                                
                                
                                
                                
                                
                                
                                
                
            
            
            
                
            
                
            
Пока комментариев нет. Начните обсуждение!