Трехкомнатная квартира в доме серии ГМС-1: Кантри по-городскому

3-комнатная • 83,1м² • • 09.12.2016
Несколько авторов Свернуть
Дарья Рощина Аксессуары
Олег Петров Аксессуары
Светлана Колосовская Аудиовидеодизайн
Александр Шкурка Архитектурное бюро
Алексей Солодов Архитектурное бюро
Павел Сергеев Автор проекта дома
Ольга Ионина Архитектурное бюро
Майя Васягина Аудиовидеодизайн
Олег Блохин Архитектурное бюро
Дизайн-проект трехкомнатной квартиры общей площадью 83,1м2 в доме серии ГМС-1.

Два дизайн-проекта трехкомнатной квартиры общей площадью 83,1 м2 и два дизайн-проекта трехкомнатной квартиры общей площадью 76,8 м2 Читать далее...

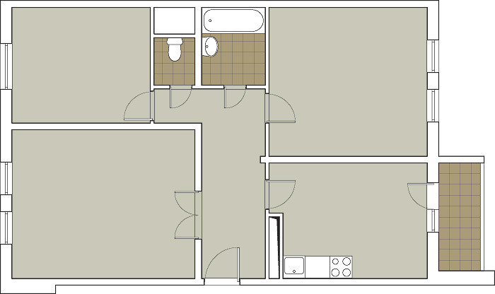
План
Комната Было Стало
Общая площадь 83,1 м2 83,1 м2
Количество комнат 3 3
Высота потолка 3 м 3 м
Прихожая 8,6 м2 8,1 м2
Кухня 11,6 м2 11,6 м2
Жилая комната 13,5 м2
Ванная комната 3,7 м2
Туалет 1,5 м2
Санузел 1,4 м2
Кладовая 1,9 м2
Коридор 7 м2 6 м2
Лоджия 2,9 м2 2,9 м2
Спальня 18 м2
Детская 15,9 м2
Мастерская (кабинет) 13,5 м2
Хозяйский санузел 6,3 м2
Гостевой санузел 1,8 м2
Гардеробная 1,9 м2
Редакция предупреждает, что в соответствии с Жилищным кодексом РФ требуется согласование проводимых переустройств и перепланировок.
Авторы
Дарья Рощина Аксессуары
+ 2
Олег Петров Аксессуары
+ 3
Светлана Колосовская Аудиовидеодизайн
+ 2
Александр Шкурка Архитектурное бюро
+ 18
Алексей Солодов Архитектурное бюро
+ 1
Павел Сергеев Автор проекта дома
Ольга Ионина Архитектурное бюро
Майя Васягина Аудиовидеодизайн
Олег Блохин Архитектурное бюро
Несколько авторов Свернуть
Если это ваш проект, пожалуйста, свяжитесь с нами по адресу ivd@burda.ru, указав в письме ссылку на проект.
Квартира 3-комнатная
Комментарии (0)

Пока комментариев нет. Начните обсуждение!

Похожие перепланировки