Подобранные дизайнерами цвета интерьера собраны воедино в
пестрой плитке (изумрудной, терракотовой и темно-розовой), напоминающей лоскутное одеяло,- символ домашнего уюта
Вид на гостиную
из спальни. Мраморные головы Будды с интересом наблюдают за гостями. Разные
по дизайну кресла объединяет в гармоничную композицию приземистый журнальный столик, сочетающий естественную красоту дерева, замысловатость резных филенок
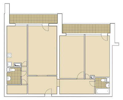
План после переустройства
Полки из гипсокартона играют скорее декоративную роль: книги на них не поставишь- только легкие сувениры
Вид из гостиной на кухню-столовую. Напротив обеденной группы предусмотрен изящный «стеллаж» из гипсокартона
со стеклянными полками
Помимо скрытой люминесцентной подсветки в ванной комнате имеются встроенные галогенные светильники. Даже выступ инсталляционной системы унитаза закрыт сверху стеклом и оборудован подсветкой. Это, конечно, китч, зато появляется декоративный акцент
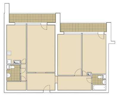
План после переустройства
Для образования ниши с полочкой потребуется продолжить выше обшивку из влагостойкого гипсокартона, скрывающую систему инсталляции унитаза и биде
Стена гостиной, примыкающая к детской, требует усиленной звукоизоляции- рядом с ней расположены источники шума (акустические колонки музыкального центра и домашнего кинотеатра), которые могут нарушать
сон детей
Оригинальное решение- обить выступы стен при входе фактурной тканью, а не оклеить обоями или оштукатурить. Полочки в спальне стеклянные
Обилие теплых цветов в детской может утомить. лучше добавить холодных, приглушенных(синий, зеленый, сиреневый)
Хозяйский санузел. Яркие цвета и «веселые картинки» плитки способны создать позитивный настрой
как у детей, так и у взрослых
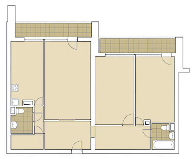
План после переустройства
Плафоны, вмонтированные в фальшстену в гостиной, дают мягкий рассеянный свет
Стены детской декорированы канатами и фрагментами старинной карты мира, под потолком- воздушный шар-люстра, кровать напоминает локомотив
План после переустройства
Для визуальной коррекции высоты помещения используется глянцевый натяжной потолок
Прихожая. Вцентре потолка сгруппировано четыре светильника с кубическими плафонами- своего рода скульптурная композиция
Вид из кухни на гостиную. Над экраном телевизора расположены две длинные полки от стены до стены. Нижняя (MDF, шпон венге)- для книг, верхняя, стеклянная,- для сувениров
Потолок в спальне родителей понижен на 12см и в него утоплены обычные (не встроенные) светильники.
Для этого помещения специально выбраны однотонные виниловые обои без рисунка, чтобы интерьер не казался навязчивым и со временем не надоедал
Возможно, для такого небольшого замкнутого пространства, как хозяйский санузел, не совсем подходят контрастная отделка и обилие темных цветов
План после переустройства
Пока комментариев нет. Начните обсуждение!