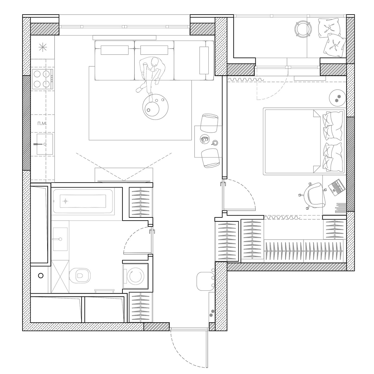
Петровский Парк

1-комнатная • 48м² • Москва • ЖК Петровский Парк • 2021 • 22.12.2021

Квартира для молодой пары в ЖК Петровский Парк в Москве

План
Комната Было Стало
Общая площадь 48 м2 48 м2
Количество комнат 1 1
Редакция предупреждает, что в соответствии с Жилищным кодексом РФ требуется согласование проводимых переустройств и перепланировок.
Авторы
Если это ваш проект, пожалуйста, свяжитесь с нами по адресу ivd@burda.ru, указав в письме ссылку на проект.
Современный стиль Квартира 1-комнатная
Комментарии (0)

Пока комментариев нет. Начните обсуждение!