Вид из кухни на гостиную. Деревянные поверхности делают даже подчеркнуто геометричный интерьер неожиданно теплым и уютным
За внешней простотой интерьера скрывается неоспоримый вкус, четкость прорисовки всех элементов и кропотливая работа
Полки
и шкафы, кажется, придумывались вовсе не для того, чтобы быть заполненными «вещественными доказательствами» быта. Перед нами полноценные участники архитектурного действа
С этой
точки зрения контраст насыщенного коричневого, преобладающего в гостиной, и серебристо-серого, царящего
на кухне и в прихожей, особенно заметен. Его усиливает разница в системах освещения
Колористическая гамма интерьера может быть названа земляной лишь условно. Ито из-за преобладания в ней коричневых оттенков. Сиреневый, оранжевый и оливковый выступают как дополнительные цвета
Ярким
синим пятном сияет на бежевой стене аквариум с подсветкой. Вопрос, кто же будет через него заглядывать
в ванную комнату, так и остался без ответа
Граница между гостиной и кухней обозначена более чем конкретно: подвесной потолок с цепочкой светильников на еле заметных подвесах, невысокая стенка с темно-коричневой линейкой деревянной столешницы
Кухня
и прихожая связаны не только единообразием решения потолка, но и лаконичной простотой и функциональ-
ностью. Ничего лишнего, только самое необходимое. Иплюс серовато-стальная гамма
Фрагмент гостиной. Мягкий свет пластикового торшера предназначен, разумеется, не для торжественных обедов,
а для тихих романтических вечеров в тесном, как видите, кругу
Интерьер ванной комнаты прост и изящен. Часть стены возле раковины отделана не керамической плиткой, а фактурной декоративной штукатуркой
Круглый аквариум пока пустует. Суета его возможных разноцветных обитателей показалась хозяину неуместной в строгом интерьере
Кабинет навевает легкие ассоциации с пресловутым стилем hightech. Функционально это вполне оправданно-
только высокие технологии и современные материалы
Хороший пример мужского интерьера. Никаких рюшечек и оборочек. Спальня проста настолько, насколько это вообще возможно. Хотя нет. Еще проще- матрас на полу, но это уже не интерьер
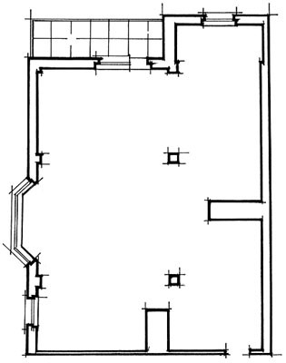
План после перепланировки
Пока комментариев нет. Начните обсуждение!