"Фирменный" элемент гостиной- стена из облицовочного кирпича. Ось обрамленного темной вишней дверного проема, дополнительно подчеркнутого двумя бра, эффектно «продолжена» расположенным на противоположной стене коридора антикварным зеркалом
Рисунок диванных подушек сочетается с цветочным орнаментом абажура напольного светильника
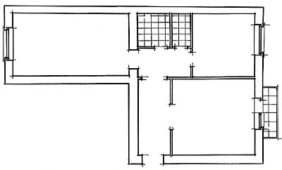
Возможность оборудовать в прихожей удобный платяной шкаф появилась благодаря тому, что стену коридора перенесли на 20см
Рабочее
место владельца квартиры- секретер фирмы "ГРАНЖ"- своеобразный стилистический камертон всей обстановки «загородного дома в городе»
Покрытые матовым лаком стенки витринного шкафа с коллекционной посудой мягко отсвечивают в полумраке коридора, идущего из кухни в спальню
Вся атмосфера квартиры как будто пронизана ожиданием праздника. («Уже отсвет Рождества чувствовался на снежных улицах...» Михаил Булгаков)
Зеркало в темной деревянной раме контрастно выделяется на фоне светлых отштукатуренных стен, увенчанных карнизом из светлого дуба
В спальне защищенность квартиры от внешних раздражителей достигает апогея. Этому способствуют и мягкие приглушенные оттенки стен и пола, мебели и драпировок
Лампа на фигурной металлической ножке- акцентный элемент интерьера спальни
На кухне сочетание тонко подобранных аксессуаров, темного дерева мебели и бежевых квадратов гранитного пола погружает нас в патриархальную атмосферу старой Англии
За таким столом приятно встретить Новый год в кругу семьи
Колорит квартиры выстроен на сближенных тонах. Воснове общей гаммы- спектрально-желтый цвет керамической плитки ванной комнаты
Обстановку туалетной комнаты удачно дополняет выполненная из светлого дуба дверца сантехнического шкафа
Мягкий приглушенный свет ламп под старинусоздает в гостиной ощущение уюта и покоя. Тяжелые шторы, подобно театральному занавесу, отделяют мир этого дома от шума и суеты большого города
План квартиры до перепланировки
План квартиры после перепланировки
Пока комментариев нет. Начните обсуждение!