Малоэтажный, но просторный: Концентрические дуги

4-комнатная • 107,4м² • Бекерон • 09.12.2016
Несколько авторов Свернуть
Наталья Левшина Архитектор, декоратор
Владимир Наумов Руководитель мастерской
Екатерина Еропкина Руководитель мастерской
Дизайн-проект перепланировки четырехкомнатной квартиры общей площадью 107,4м2 в панельном доме системы «Бекерон».

Четыре варианта перепланировки четырехкомнатной квартиры общей площадью 107,4 м2 в панельном малоэтажном доме системы «Бекерон». Читать далее...

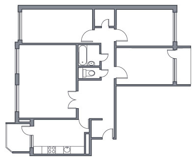
План
Комната Было Стало
Общая площадь 107,4 м2 107,4 м2
Жилая площадь 68,5 м2 66,4 м2
Количество комнат 4 4
Высота потолка 3 м 2,86 м
Прихожая 9,1 м2 8,1 м2
Гостиная 26,3 м2 26,3 м2
Комната 12,9 м2
Кухня 12,4 м2 12,4 м2
Гардеробная 2,5 м2
Ванная комната 3,9 м2 8,1 м2
Туалет 1,1 м2 2,4 м2
Коридор 4,7 м2 5,4 м2
Кладовая 2,5 м2
Лоджия 3,7 м2
Балкон 3 м2 3 м2
Детская 11,7 м2
Спальня 15,5 м2
Зимний сад 3,7 м2
Редакция предупреждает, что в соответствии с Жилищным кодексом РФ требуется согласование проводимых переустройств и перепланировок.
Авторы
Наталья Левшина Архитектор, декоратор
Владимир Наумов Руководитель мастерской
+ 1
Екатерина Еропкина Руководитель мастерской
+ 1
Несколько авторов Свернуть
Если это ваш проект, пожалуйста, свяжитесь с нами по адресу ivd@burda.ru, указав в письме ссылку на проект.
Квартира 4-комнатная
Комментарии (0)

Пока комментариев нет. Начните обсуждение!