Реализованный проект двухкомнатной квартиры площадью 77,6 м2
Квартира предназначена для проживания женщины и ее матери — представительниц двух разных поколений, которые находятся под одной крышей всю жизнь. Перед дизайнером стояла задача оформить две изолированные спальни и общую зону, а также сделать комфортную обстановку, располагающую к отдыху. Читать далее...
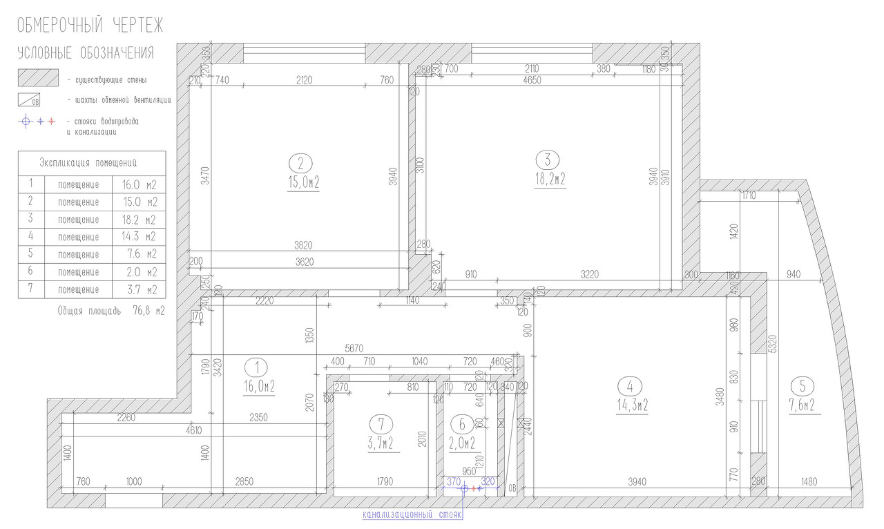
План
| Комната |
Было |
Стало |
| Общая площадь |
76,8 м2
|
76,8 м2
|
| Количество комнат |
2 |
2 |
| Высота потолка |
2,9 м
|
2,9 м
|
| Спальня |
– |
18,2 м2 |
| Кухня |
– |
18,9 м2 |
| Санузел |
– |
5,7 м2 |
| Холл |
– |
16 м2 |
| Балкон |
– |
3 м2 |
Редакция предупреждает, что в соответствии с Жилищным кодексом РФ требуется согласование проводимых переустройств и перепланировок.
Материалы и цвета
Спальня
- Стены: обои флизелиновые Harlequin Amazilia, краска Benjamin Moore
- Пол: паркет Barlinek
- Мебель: кресло Estetica, комод Гарда Декор
- Светильники: люстра, бра Favourite
Спальня
- Стены: обои Fresq, краска Benjamin Moore
- Пол: паркет Barlinek
- Мебель: стул Estetica, пуф Estetica, тумба Dantone Home
- Светильники: подвес Crystal Lux
Кухня
- Стены: краска Benjamin Moore, стол Kay, стулья Estetica, люстра Crystal Lux
- Пол: напольная плитка Peronda FS Chester, напольная плитка Settecento Evoque
- Мебель: кухня «Атас-Люкс»
Санузел
- Стены: обои Cub Fabric, настенная плитка Cifre, мозаика Vidrepur
- Сантехника: ванна Villeroy&Boch, унитаз подвесной Villeroy&Boch, тумба с керамической раковиной, пенал Caprigo
Холл
- Стены: краска Benjamin Moore
- Пол: напольная плитка Peronda, напольная плитка Settecento
- Светильники: бра Gramercy Home, люстры Favourite
Авторы
Если это ваш проект, пожалуйста, свяжитесь с нами по адресу
ivd@burda.ru, указав в письме ссылку на проект.
Пока комментариев нет. Начните обсуждение!