Нестандартный взгляд: Раз ступенька, два ступенька...

2-комнатная • 53,4м² • П-30 • 09.12.2016
Несколько авторов Свернуть
Ольга Кондратова Аксессуары
Юлия Долгополова Руководитель мастерской
Блаз Эрзетич Аксессуары
Ирина Голицина Руководитель мастерской
Екатерина Чеботарева Руководитель мастерской
Петр Виноградов Руководитель мастерской
Дизайн-проект перепланировки двухкомнатной квартиры общей площадью 52м2 в доме серии П-30.

Три варианта перепланировки двухкомнатной квартиры общей площадью 53,4 м2 в панельном жилом доме серии П-30. Читать далее...

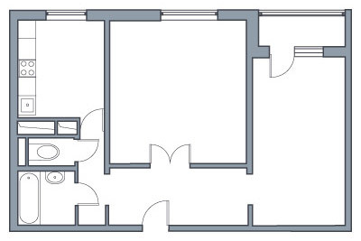
План
Комната Было Стало
Общая площадь 53,4 м2 53,4 м2
Жилая площадь 30,4 м2 22,7 м2
Количество комнат 2 2
Высота потолка 2,64 м
Прихожая 6,4 м2
Шкаф ,6 м2
Коридор 2,2 м2
Комната 13,2 м2
Кухня 8,5 м2 8,5 м2
Ванная комната 3,9 м2 6,25 м2
Туалет 1,4 м2
Лоджия 2,7 м2 2,7 м2
Прихожая-библиотека 10,5 м2
Кабинет 3,6 м2
Спальня 10 м2
Детская 9,5 м2
Гардеробная 3,2 м2
Гостевой санузел 1,85 м2
Редакция предупреждает, что в соответствии с Жилищным кодексом РФ требуется согласование проводимых переустройств и перепланировок.
Авторы
Юлия Долгополова Руководитель мастерской
+ 1
Блаз Эрзетич Аксессуары
Ирина Голицина Руководитель мастерской
+ 2
Екатерина Чеботарева Руководитель мастерской
Петр Виноградов Руководитель мастерской
Несколько авторов Свернуть
Если это ваш проект, пожалуйста, свяжитесь с нами по адресу ivd@burda.ru, указав в письме ссылку на проект.
Квартира 2-комнатная
Комментарии (0)

Пока комментариев нет. Начните обсуждение!