Дворец дожей
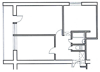
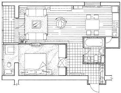
Десять вариантов перепланировки типовой двухкомнатной квартиры общей площадью 50,2 м2 в панельно-блочном доме серии

Комната | Было | Стало |
---|---|---|
Общая площадь | 50,2 м2 | |
Жилая площадь | 28,2 м2 | |
Количество комнат | 2 | 1 |
Высота потолка | 2,48 м | – |
Пока комментариев нет. Начните обсуждение!