В центре внимания — «хрущевка»: Если у вас часто бывают гости

3-комнатная • 56,67м² • 1-511 • 09.12.2016
Несколько авторов Свернуть
Юрий Филатов Руководитель мастерской
Алексей Стрелков Руководитель мастерской
Светлана Яковлева Руководитель мастерской
Александр Игнатьев Руководитель мастерской
Борис Коломейченко Руководитель мастерской
Дизайн-проект перепланировки трехкомнатной квартиры общей площадью 56,67м2 в кирпичной пятиэтажке серии 1-511.

Три варианта перепланировки трехкомнатной квартиры общей площадью 56,67 м2 в кирпичной пятиэтажке серии 1-511. Читать далее...

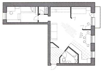
План
Комната Было Стало
Общая площадь 56,67 м2 56,67 м2
Жилая площадь 42 м2 39 м2
Количество комнат 3 3
Высота потолка 2,48 м
Прихожая 5,06 м2 3,5 м2
Коридор 1,53 м2
Кухня 4,85 м2 10,27 м2
Комната 13,01 м2
Ванная комната 2,01 м2
Туалет 1,22 м2
Балкон 2,27 м2 2,27 м2
Гостиная 19,5 м2
Спальня 7,4 м2
Детская 10,3 м2
Гардеробная 1,8 м2
Санузел 3,9 м2
Редакция предупреждает, что в соответствии с Жилищным кодексом РФ требуется согласование проводимых переустройств и перепланировок.
Авторы
Юрий Филатов Руководитель мастерской
+ 2
Алексей Стрелков Руководитель мастерской
+ 1
Светлана Яковлева Руководитель мастерской
+ 3
Александр Игнатьев Руководитель мастерской
+ 1
Борис Коломейченко Руководитель мастерской
+ 3
Несколько авторов Свернуть
Если это ваш проект, пожалуйста, свяжитесь с нами по адресу ivd@burda.ru, указав в письме ссылку на проект.
Квартира 3-комнатная
Комментарии (0)

Пока комментариев нет. Начните обсуждение!