Детективная история: Жилище музыканта

2-комнатная • 137 • 09.12.2016
Несколько авторов Свернуть
Владас Паршин Архитектор, декоратор
Аркадий Ивашкин Архитектор, декоратор
Виктория Даванкова Архитектор, декоратор
Валерия Прянишникова Архитектор, декоратор
Мария Накладова Архитектор, декоратор
Денис Чистов Архитектор, декоратор
Дарья Пржиялговская Архитектор, декоратор
Александр Молчанов Архитектор, декоратор
Татьяна Орлова Архитектор, декоратор
Виктория Самойлова Архитектор, декоратор
Дизайн-проект перепланировки двухкомнатной квартиры общей площадью 56м2 в доме 137-й серии.

Девять вариантов перепланировки стандартной двухкомнатной квартиры общей площадью 56 м2 в доме серии 137. Читать далее...

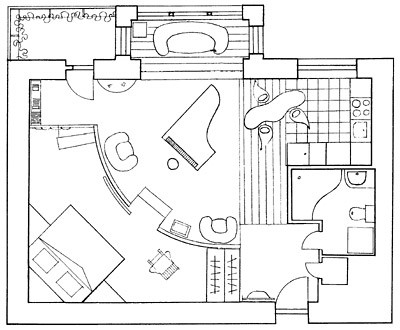
План
Комната Было Стало
Общая площадь 56 м2
Жилая площадь 33,8 м2
Количество комнат 2 2
Прихожая 5,2 м2
Гостиная 18,8 м2
Спальня 15 м2
Кухня 7,2 м2
Редакция предупреждает, что в соответствии с Жилищным кодексом РФ требуется согласование проводимых переустройств и перепланировок.
Авторы
Владас Паршин Архитектор, декоратор
Аркадий Ивашкин Архитектор, декоратор
+ 1
Виктория Даванкова Архитектор, декоратор
+ 2
Валерия Прянишникова Архитектор, декоратор
+ 2
Мария Накладова Архитектор, декоратор
+ 1
Денис Чистов Архитектор, декоратор
+ 1
Дарья Пржиялговская Архитектор, декоратор
+ 1
Александр Молчанов Архитектор, декоратор
+ 6
Татьяна Орлова Архитектор, декоратор
+ 7
Виктория Самойлова Архитектор, декоратор
Несколько авторов Свернуть
Если это ваш проект, пожалуйста, свяжитесь с нами по адресу ivd@burda.ru, указав в письме ссылку на проект.
Квартира 2-комнатная
Комментарии (0)

Пока комментариев нет. Начните обсуждение!