Задача с тремя неизвестными: Счастливое избавление от коридора

3-комнатная • П-44 • 09.12.2016
Несколько авторов Свернуть
Елена Гребенникова Архитектор, декоратор
Кирилл Городов Архитектор, декоратор
Георгий Пряничников Архитектор, декоратор
Михаил Шилов Архитектор, декоратор
Кирилл Бескибалов Архитектор, декоратор
Денис Чистов Архитектор, декоратор
Мария Накладова Архитектор, декоратор
Татьяна Орлова Архитектор, декоратор
Дизайн-проект перепланировки трехкомнатной квартиры общей площадью 73,8м2 в панельном доме серии П-44.

Шесть вариантов перепланировки трехкомнатной квартиры общей площадью 73,8 м2 в панельном доме серии П-44. Читать далее...

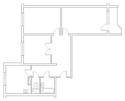
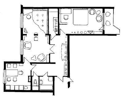
План
Комната Было Стало
Общая площадь 73,8 м2
Жилая площадь 44,8 м2
Количество комнат 3 3
Высота потолка 2,64 м
Холл 7,8 м2
Кухня 10,1 м2
Жилая комната 18,9 м2
Редакция предупреждает, что в соответствии с Жилищным кодексом РФ требуется согласование проводимых переустройств и перепланировок.
Авторы
Елена Гребенникова Архитектор, декоратор
+ 2
Кирилл Городов Архитектор, декоратор
+ 5
Георгий Пряничников Архитектор, декоратор
+ 5
Михаил Шилов Архитектор, декоратор
+ 4
Кирилл Бескибалов Архитектор, декоратор
+ 7
Денис Чистов Архитектор, декоратор
+ 1
Мария Накладова Архитектор, декоратор
+ 1
Татьяна Орлова Архитектор, декоратор
+ 7
Несколько авторов Свернуть
Если это ваш проект, пожалуйста, свяжитесь с нами по адресу ivd@burda.ru, указав в письме ссылку на проект.
Квартира 3-комнатная
Комментарии (0)

Пока комментариев нет. Начните обсуждение!