Задача с тремя неизвестными

3-комнатная • П-44 • 09.12.2016
Владимир Карганов Руководитель мастерской
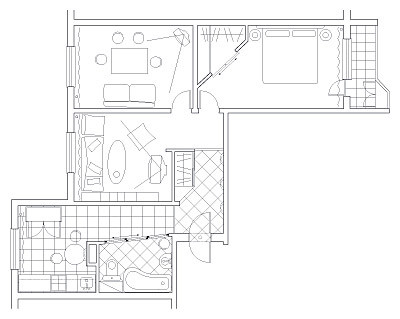
Трехкомнатная квартира общей площадью 73,8м2 в панельном доме серии П-44. Реализованный проект.

Реконструкция трехкомнатной квартиры в панельном доме серии П-44. Многофункциональность, легкость и тщательно подобранная мебель. Читать далее...

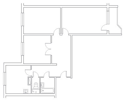
План
Комната Было Стало
Общая площадь 73,8 м2
Жилая площадь 44,8 м2
Количество комнат 3 3
Высота потолка 2,64 м
Холл 7,8 м2
Кухня 10,1 м2
Жилая комната 18,9 м2
Редакция предупреждает, что в соответствии с Жилищным кодексом РФ требуется согласование проводимых переустройств и перепланировок.
Авторы
Владимир Карганов Руководитель мастерской
+ 1
Если это ваш проект, пожалуйста, свяжитесь с нами по адресу ivd@burda.ru, указав в письме ссылку на проект.
Квартира 3-комнатная
Комментарии (0)

Пока комментариев нет. Начните обсуждение!

Похожие перепланировки