Элегантная квартира в стиле классика с винтажными деталями

2-комнатная • 97,47м² • Санкт-Петербург • ЖК Линкор • 2026 • 07.04.2026

Стильный и элегантный интерьер квартиры в стиле французская классика с элементами винтажа, который сочетает в себе роскошь, утонченность и уют. Основная идея — подчеркнуть изысканность французского шика, добавив нотки винтажной романтики и драматизма, что достигается использованием декоративных деталей, антикварных элементов и мягких пастельных тонов.

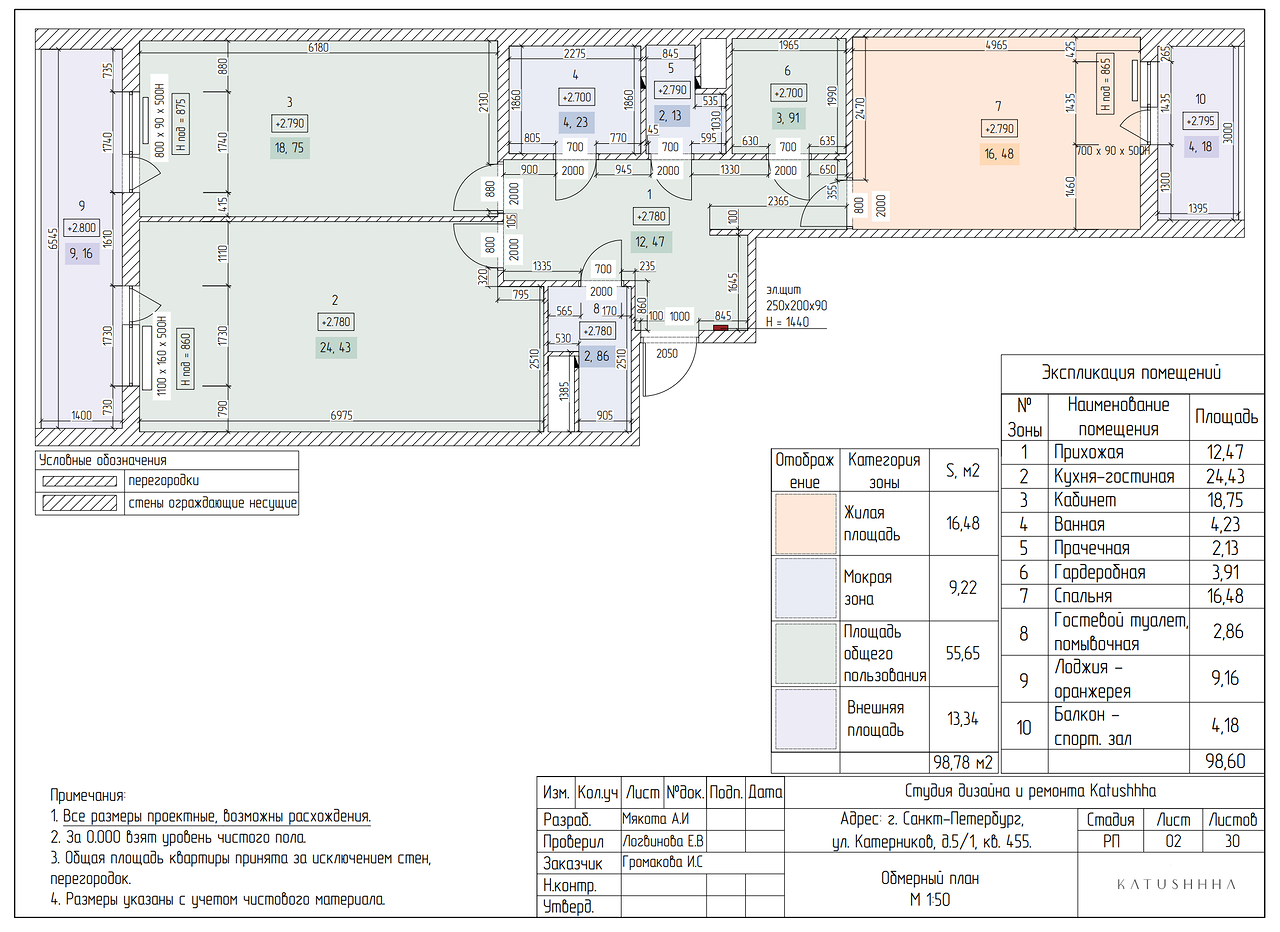
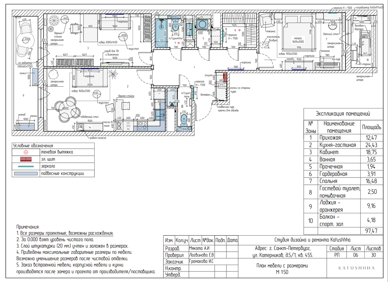
План
Комната Было Стало
Общая площадь 98,60 м2 97,47 м2
Жилая площадь 16,48 м2 16,48 м2
Количество комнат 2 2
Ванная комната 4,23 м2 3,65 м2
Редакция предупреждает, что в соответствии с Жилищным кодексом РФ требуется согласование проводимых переустройств и перепланировок.
Материалы и цвета
Цвета
  • Стены, Мебель
  • Стены, Мебель
  • Стены, Мебель
Авторы
Если это ваш проект, пожалуйста, свяжитесь с нами по адресу ivd@burda.ru, указав в письме ссылку на проект.
Классический стиль Квартира Желтые Красные Синие 2-комнатная
Комментарии (0)

Пока комментариев нет. Начните обсуждение!