Квартира, где сочетается функциональность и эстетика

2-комнатная • 60,06м² • Санкт-Петербург • ЖК Дом на Васильевской • 2025 • 07.04.2026

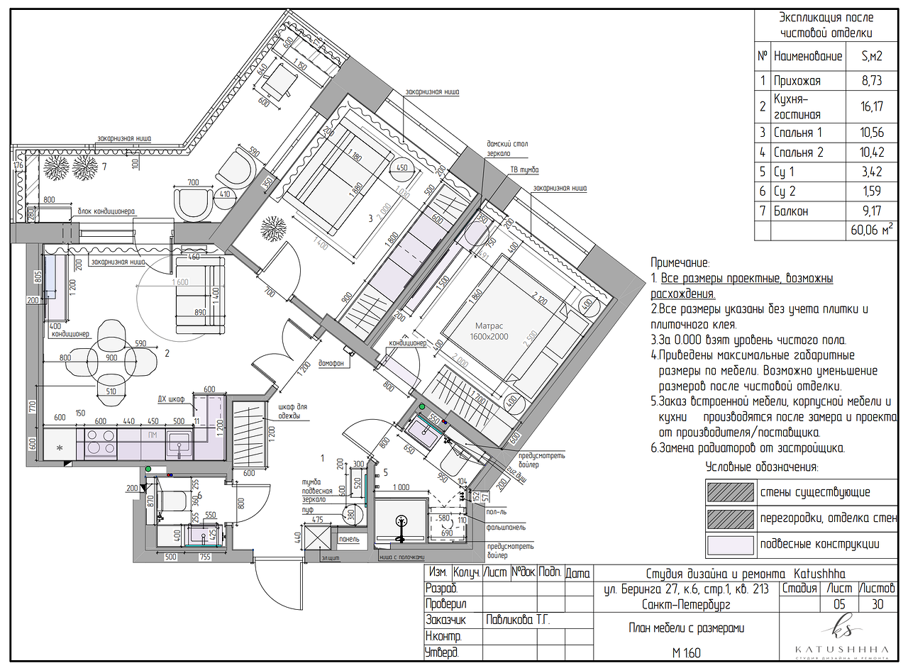
На площади 60 м² можно легко сочетать функциональность и эстетику, используя мягкие нейтральные оттенки, которые зрительно расширяют пространство. Стены, выкрашенные в светло-бежевый цвет, могут служить идеальным фоном для художественных произведений и элементов декора, добавляя глубину и характер помещению. Квартира с асимметричной планировкой стала настоящим примером функционального и стильного дизайна. Главной задачей при её оформлении было создать комфортное пространство, не перегружая интерьер лишними деталями. В общей кухне-гостиной гармонично разместилась зона кухни с угловым кухонным гарнитуром. Небольшой обеденный стол на четыре персоны стал идеальным местом для семейных ужинов и встреч с друзьями. Диван длиной 180 см аккуратно разделяет помещение на зоны, создавая уютную атмосферу для отдыха и общения. Прихожая квартиры также продумана до мелочей. Здесь выделяются две функциональные зоны: входная группа с удобным пуфом и зеркалом, где можно быстро подготовиться к выходу, и зона хранения, представленная вместительным шкафом. Спальня оформлена с акцентом на элегантность и уют. Дизайнерские обои с цветочным принтом за изголовьем кровати придают помещению особый шарм. Вместительный шкаф с полками для мелочей и дамский стол создают комфортные условия для хранения вещей и ухода за собой, делая пространство максимально функциональным. Ванная комната: здесь предусмотрена полноценная душевая, которая позволяет наслаждаться водными процедурами, а прачечная зона, скрытая за шкафами, обеспечивает порядок и аккуратность. Зона раковины оформлена с учетом всех современных требований, что делает её удобной и практичной.

План
Комната Было Стало
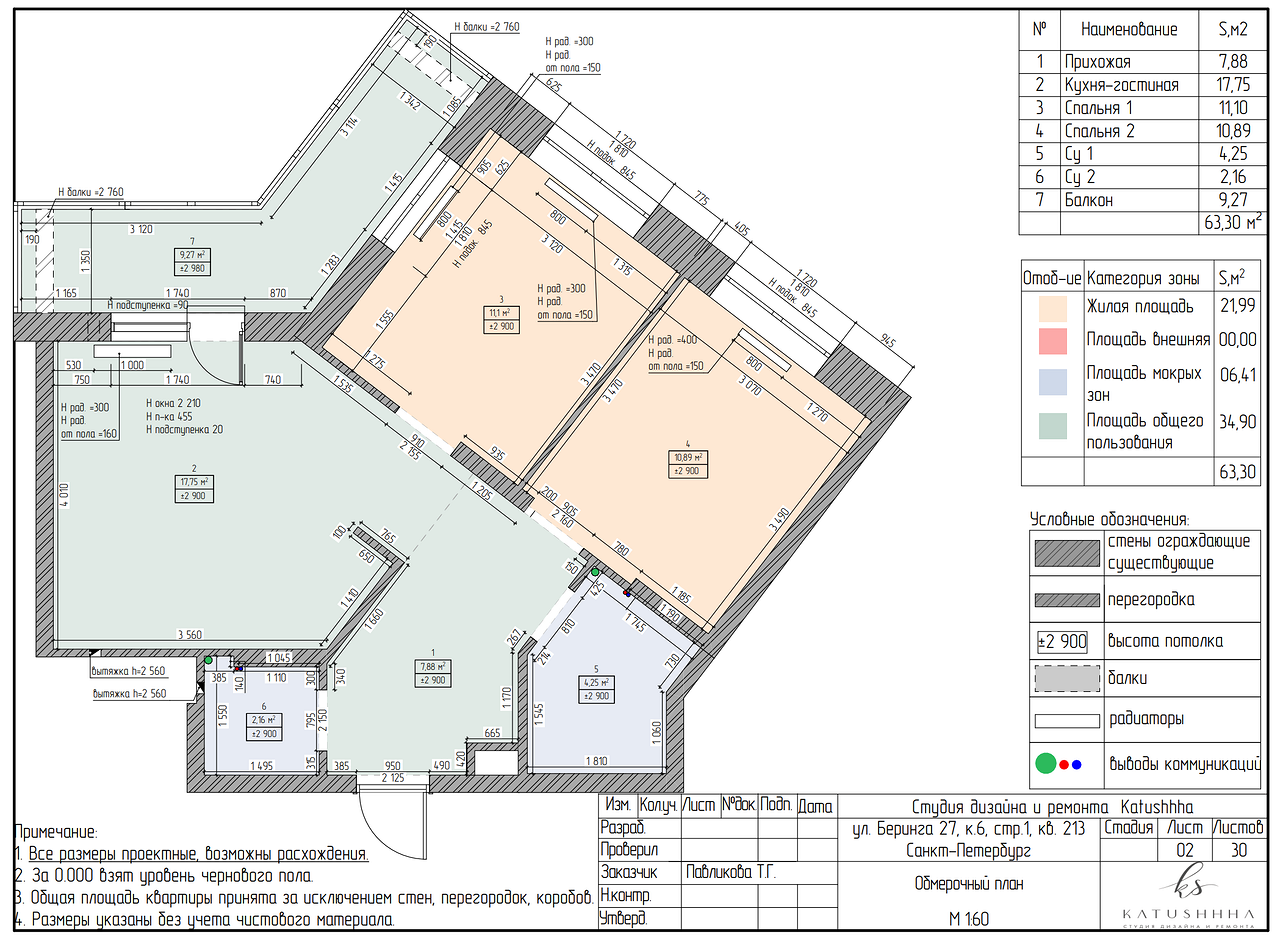
Общая площадь 63,30 м2 60,06 м2
Жилая площадь 22 м2 20,9 м2
Количество комнат 2 2
Спальня 11,1 м2 10,7 м2
Редакция предупреждает, что в соответствии с Жилищным кодексом РФ требуется согласование проводимых переустройств и перепланировок.
Авторы
Если это ваш проект, пожалуйста, свяжитесь с нами по адресу ivd@burda.ru, указав в письме ссылку на проект.
Современная классика Квартира 2-комнатная
Комментарии (0)

Пока комментариев нет. Начните обсуждение!