Маленькое пространство — большое вдохновение! Посмотрите, как в 40 кв. м создают стильную и практичную жизнь

1-комнатная • 37,73м² • Санкт-Петербург • ЖК «Мосфильмовский» • 2024 • 07.04.2026

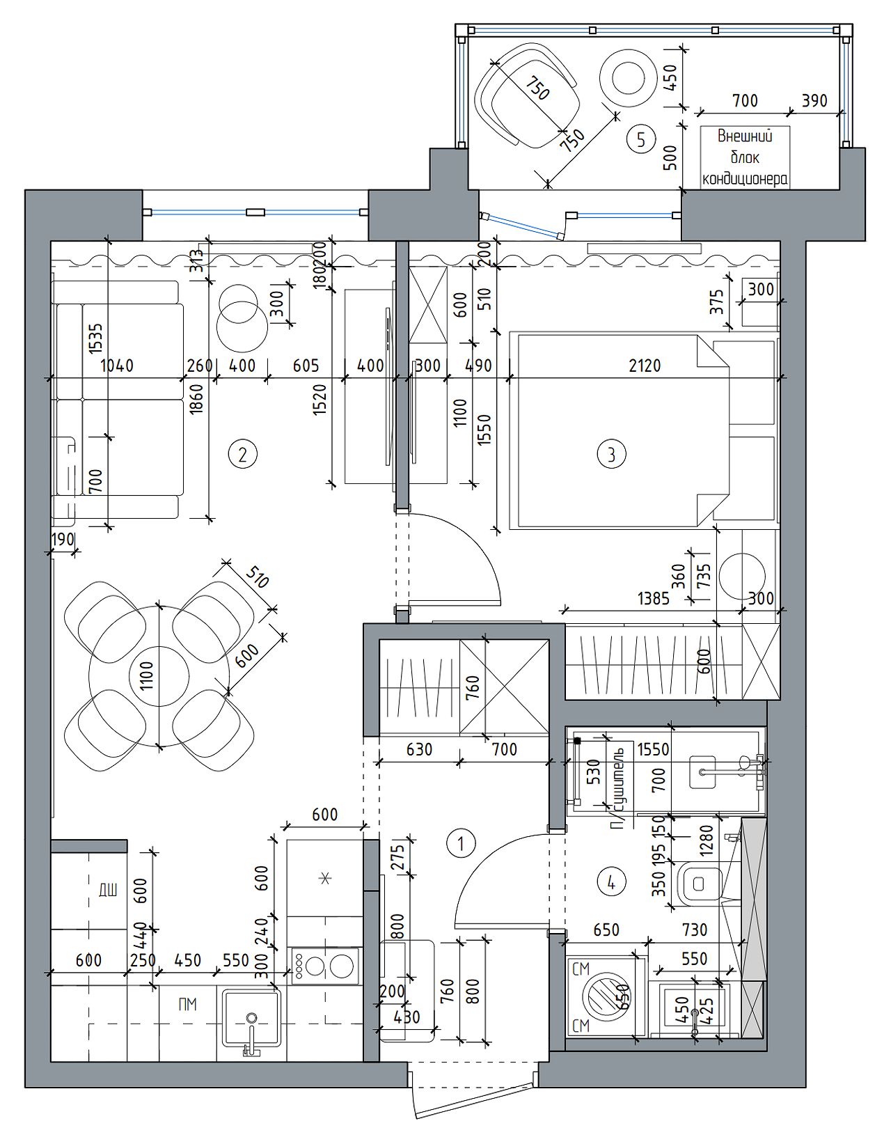
Воплощение в жизнь дизайн-проекта в жилом комплексе «Легенда героев» на площади 40 квадратных метров, где актуальные дизайнерские концепции идеально сочетаются с практичностью. Основой данного проекта является прогрессивная планировка, включающая эргономичную кухню-гостиную, спальную комнату с системами хранения и санузел с выделенной зоной для стирки. Для обособления кухонной зоны мы применили широкоформатный керамогранит, гарантируя износостойкость и функциональность. П-образная конфигурация кухонной мебели гармонично интегрирована в общее пространство гостиной. Размещение бытовой техники подчинено принципу рабочего треугольника для оптимальной эргономики. Столовая зона удачно размещена между кухней и гостиной, служа связующим звеном. В центре внимания — круглый деревянный стол, выполненный из цельного дерева, который не только соединяет эти два пространства, но и является главным элементом интерьера. Его округлая форма перекликается с дизайном потолочного светильника, создавая целостное и гармоничное впечатление. В оформлении гостиной акцент был сделан на создании уютной зоны отдыха с возможностью организации дополнительного спального места. Декоративным акцентом над диваном выступают настенные светильники, оформленные молдингами, что визуально обогащает стену и придает ей элегантность. В спальне площадью 10 квадратных метров реализован тщательно продуманный и сбалансированный дизайн. Встроенный шкаф, искусно замаскированный в нише, плавно перетекает в элегантный туалетный столик с крупным зеркалом и мягкой подсветкой, предлагая удобное место для хранения вещей и ухода за собой. В центре комнаты расположена широкая кровать с мягким изголовьем, оборудованная подъемным механизмом, создающим дополнительное место для хранения. Дизайн ванной комнаты тщательно спланирован, приоритетом является практичность. Пространство эргономично организовано: зона стирки с установленными стиральной и сушильной машинами, умывальник с полочками и встроенной подсветкой. Нижняя часть углубления в стене выполнена на одном уровне с раковиной, что визуально добавляет ей объема. Различные варианты освещения создают ощущение простора и позволяют создавать разные атмосферы. Особый интерес вызывает комбинация отделки: стены облицованы керамической плиткой в стиле «кабанчик» в сочетании с окрашенными участками, а напольное покрытие выполнено из испанской плитки с геометрическим рисунком. Это придает ванной комнате неповторимый облик.

План
Комната Было Стало
Общая площадь 38,08 м2 37,73 м2
Жилая площадь 9,16 м2 9,73 м2
Количество комнат 1 1
Спальня 9,16 м2 9,73 м2
Редакция предупреждает, что в соответствии с Жилищным кодексом РФ требуется согласование проводимых переустройств и перепланировок.
Материалы и цвета
Цвета
  • Стены, Мебель
  • Мебель, Пол
  • Аксессуары
Авторы
Если это ваш проект, пожалуйста, свяжитесь с нами по адресу ivd@burda.ru, указав в письме ссылку на проект.
Современная классика Квартира Желтые Чёрные и белые 1-комнатная
Комментарии (0)

Пока комментариев нет. Начните обсуждение!