Идеальный баланс комфорта и стиля: индивидуальный дизайн интерьера

4-комнатная • 65,85м² • Санкт-Петербург • ЖК Амо • 2025 • 07.04.2026
Индивидуальный дизайн интерьера в ЖК «Амо» создавался для людей, ценящих комфорт и функциональность в каждой детали. Объединенное пространство кухни-гостиной — это сердце дома, где гармонично сочетаются зоны приготовления пищи, отдыха и общения. Здесь нашлось место и для большого обеденного стола, и для уютного дивана, и для современной кухонной техники, интегрированной в минималистичные фасады. Прачечная — это не просто техническое помещение, а полноценная комната, оснащенная всем необходимым для стирки, сушки и глажки белья. Продуманная система хранения позволяет держать все под рукой и поддерживать идеальный порядок. Яркая прихожая встречает гостей позитивным настроением. Смелые акценты и оригинальные детали в интерьере сразу задают тон всему дому. Мастер спальня — это оазис спокойствия и уединения. В ней создана атмосфера расслабленности и комфорта, способствующая полноценному отдыху. Гардеробная комната, примыкающая к спальне, организована таким образом, чтобы максимально эффективно использовать пространство и обеспечить удобный доступ ко всем вещам. Природные материалы в отделке создают ощущение тепла и уюта. Дерево, камень, натуральные ткани — все это привносит в интерьер нотки естественности и экологичности. Травяной цвет, ставший изюминкой проекта, добавляет свежести и оригинальности. Он присутствует как в отделке стен, так и в текстиле и элементах декора, создавая гармоничное и стильное пространство.
План
Комната Было Стало
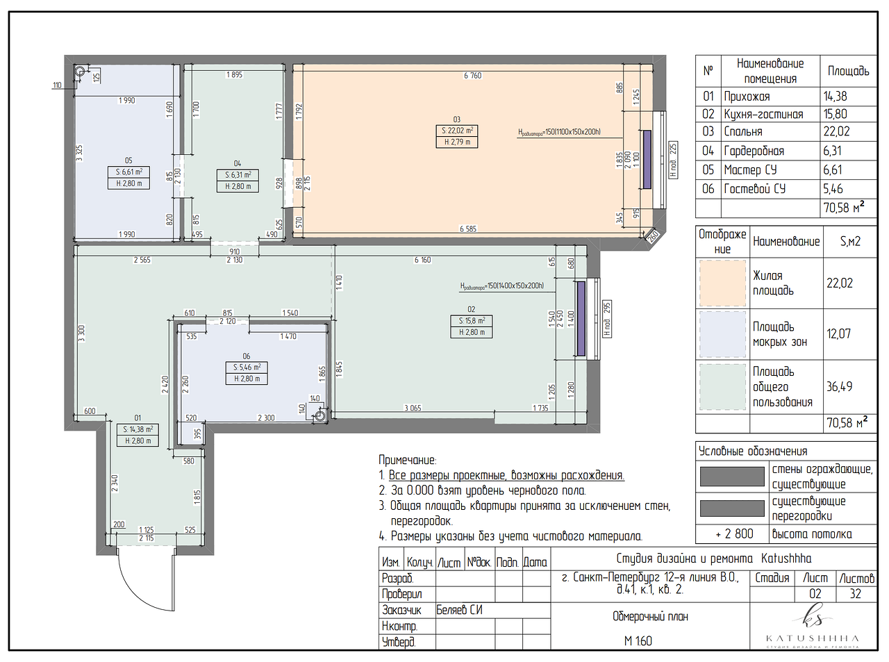
Общая площадь 70,58 м2 65,85 м2
Жилая площадь 22 м2 17,64 м2
Количество комнат 2 4
Спальня 22 м2 17,64 м2
Редакция предупреждает, что в соответствии с Жилищным кодексом РФ требуется согласование проводимых переустройств и перепланировок.
Материалы и цвета
Цвета
  • Стены, Мебель
  • Стены, Потолок, Мебель
  • Стены, Мебель
Авторы
Если это ваш проект, пожалуйста, свяжитесь с нами по адресу ivd@burda.ru, указав в письме ссылку на проект.
Современный стиль Квартира Желтые Зелёные 4-комнатная
Комментарии (0)

Пока комментариев нет. Начните обсуждение!