Стильная классика с винтажем

3-комнатная • 114,27м² • Санкт-Петербург • ЖК Мадонна Бенуа • 2025 • 07.04.2026

Высокие потолки в 3,4 метра стали идеальным холстом для создания утонченного интерьера в стиле французской классики, приправленного пикантными акцентами. Сердцем концепции является гармония: правильные формы, симметрия и композиционное единство пронизывают каждый уголок пространства. Цветовая палитра построена на изысканных сочетаниях, где нежные оттенки серого и бежевого переплетаются с глубокими акцентами золота и бордо. Особое внимание уделено функциональности. Зоны, деликатно интегрированные в пространство, остаются практически незаметными при первом взгляде, не нарушают ощущение легкости и воздушности. Винтажные элементы играют ключевую роль в создании неповторимого шарма. Антикварные зеркала, изящная мебель с изогнутыми ножками и люстра с хрустальными подвесками добавляют интерьеру исторической глубины и аутентичности. Этот интерьер – не просто место для жизни, а настоящее произведение искусства, где французская классика обретает новую жизнь в современном исполнении.

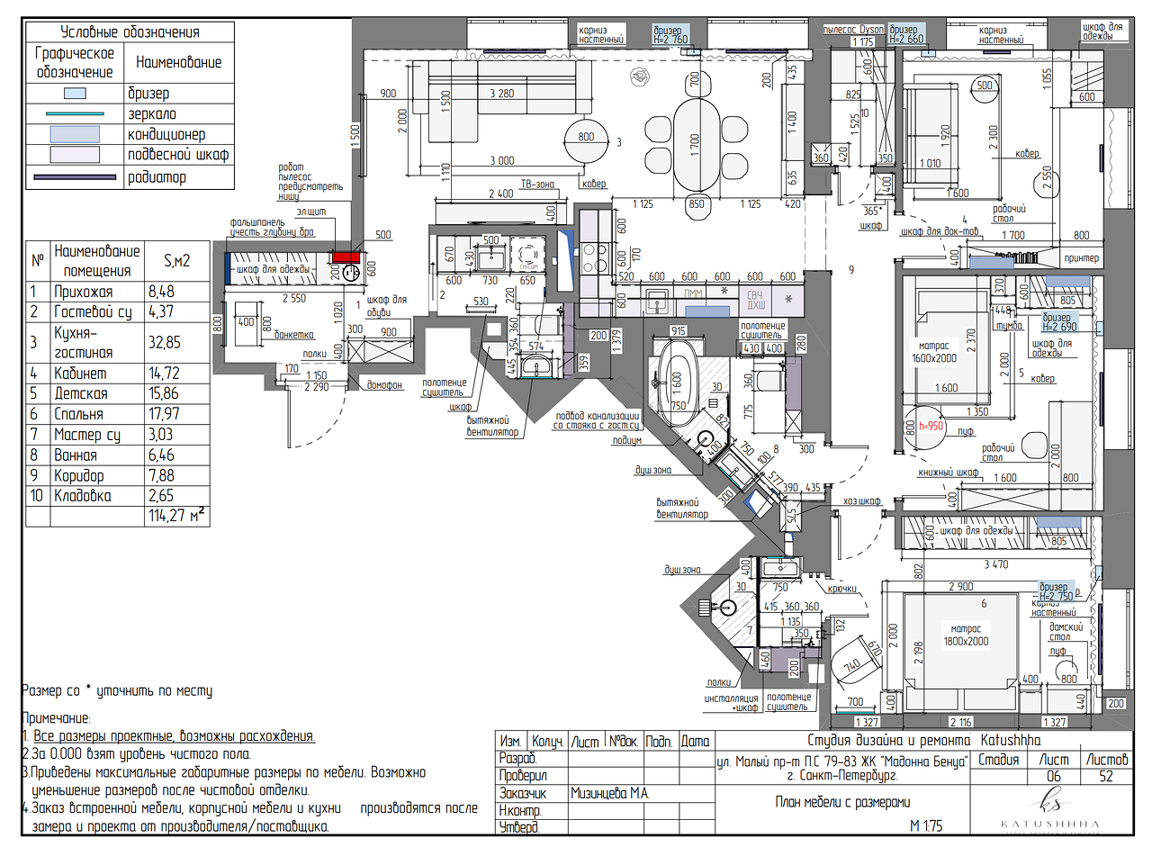
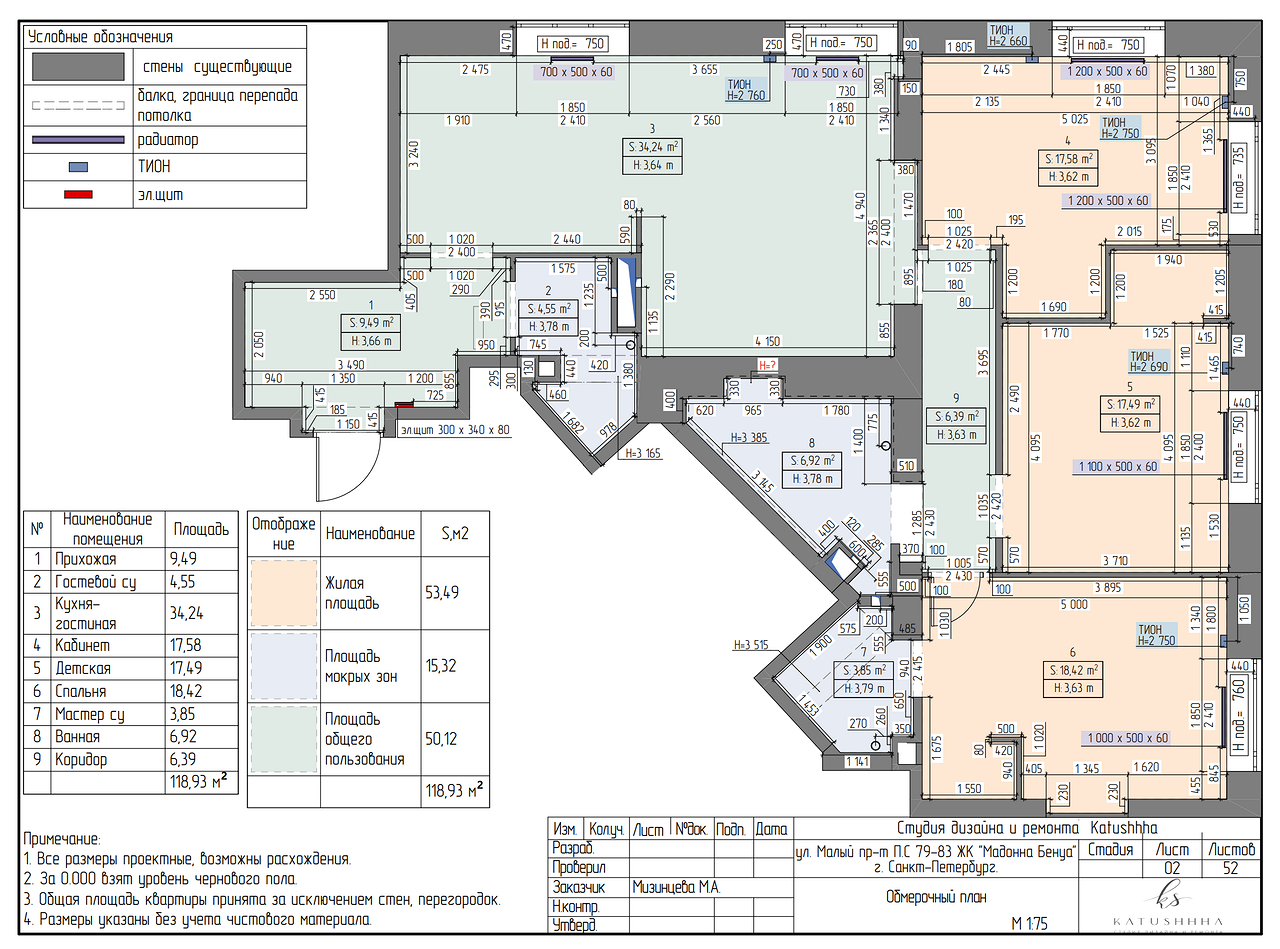
План
Комната Было Стало
Общая площадь 118,93 м2 114,27 м2
Жилая площадь 49,27 м2 48,55 м2
Количество комнат 3 3
Кабинет 17,58 м2 14,52 м2
Редакция предупреждает, что в соответствии с Жилищным кодексом РФ требуется согласование проводимых переустройств и перепланировок.
Материалы и цвета
Кабинет
  • Пол: инженерная доска — дуб Greenline
Авторы
Если это ваш проект, пожалуйста, свяжитесь с нами по адресу ivd@burda.ru, указав в письме ссылку на проект.
Английский стиль Квартира Желтые Красные Зелёные 3-комнатная
Комментарии (0)

Пока комментариев нет. Начните обсуждение!