Эргономика и стиль: создаем идеальный дом — комфорт, функциональность и уют в каждом уголке!

3-комнатная • 84м² • Санкт-Петербург • ЖК «Наука» • 2025 • 07.04.2026
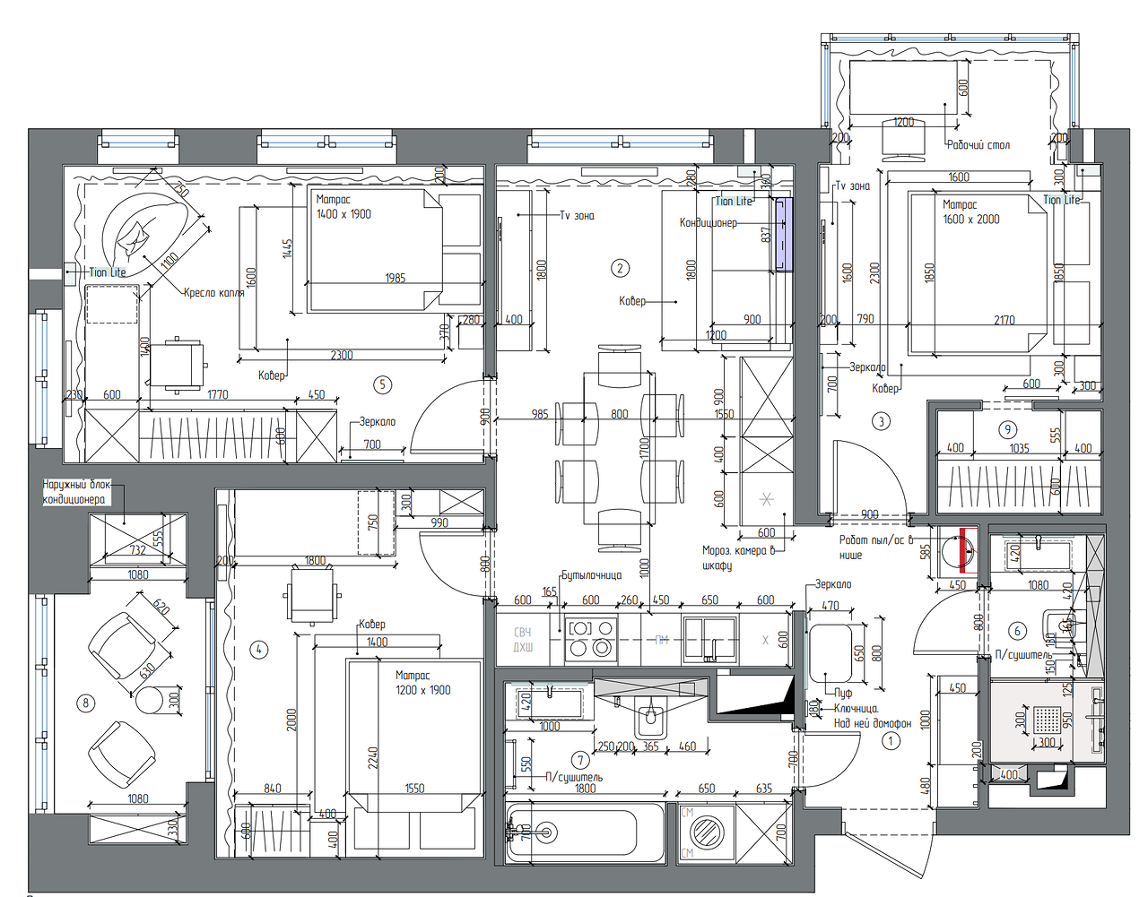
Одним из ключевых элементов проекта стала небольшая кухня-гостиная площадью 17 м². В ней используются современные материалы, светлые оттенки и удобная планировка, что способствует приятной и уютной атмосфере. Здесь предусмотрена достаточно места для семьи и гостей, а также просторные зоны хранения и красивый дизайн, сочетающий стиль и практичность. Главной спальней в проекте является шикарная спальня с гардеробной — зона, где комфорт и стиль соединены в единое целое. Гардеробная спроектирована так, чтобы обеспечить полноценное хранение вещей без загромождения пространства, а сама спальня выполнена в легких тонах с уютной мебелью, создавая атмосферу спокойствия и релакса. Для детей предусмотрены две полноценные детские комнаты для подростков, каждая из которых отвечает требованиям комфорта и практичности. В них реализованы зоны для работы, отдыха и развлечений, с достаточным пространством для хранения вещей. В интерьере использованы эргономичные решения, чтобы сделать пространство максимально удобным и функциональным. Важной частью проекта стала продуманная ванная комната с прачечной зоной. Она объединяет бытовую функциональность и стильный дизайн, оснащена современной сантехникой и системами хранения. Такой подход позволяет максимально эффективно использовать площадь и обеспечить удобство для всей семьи. Этот проект — идеальный баланс между эстетикой и функциональностью. В результате получилась уютная и эргономичная квартира, где каждая зона продумана для комфортной жизни и гармонии.
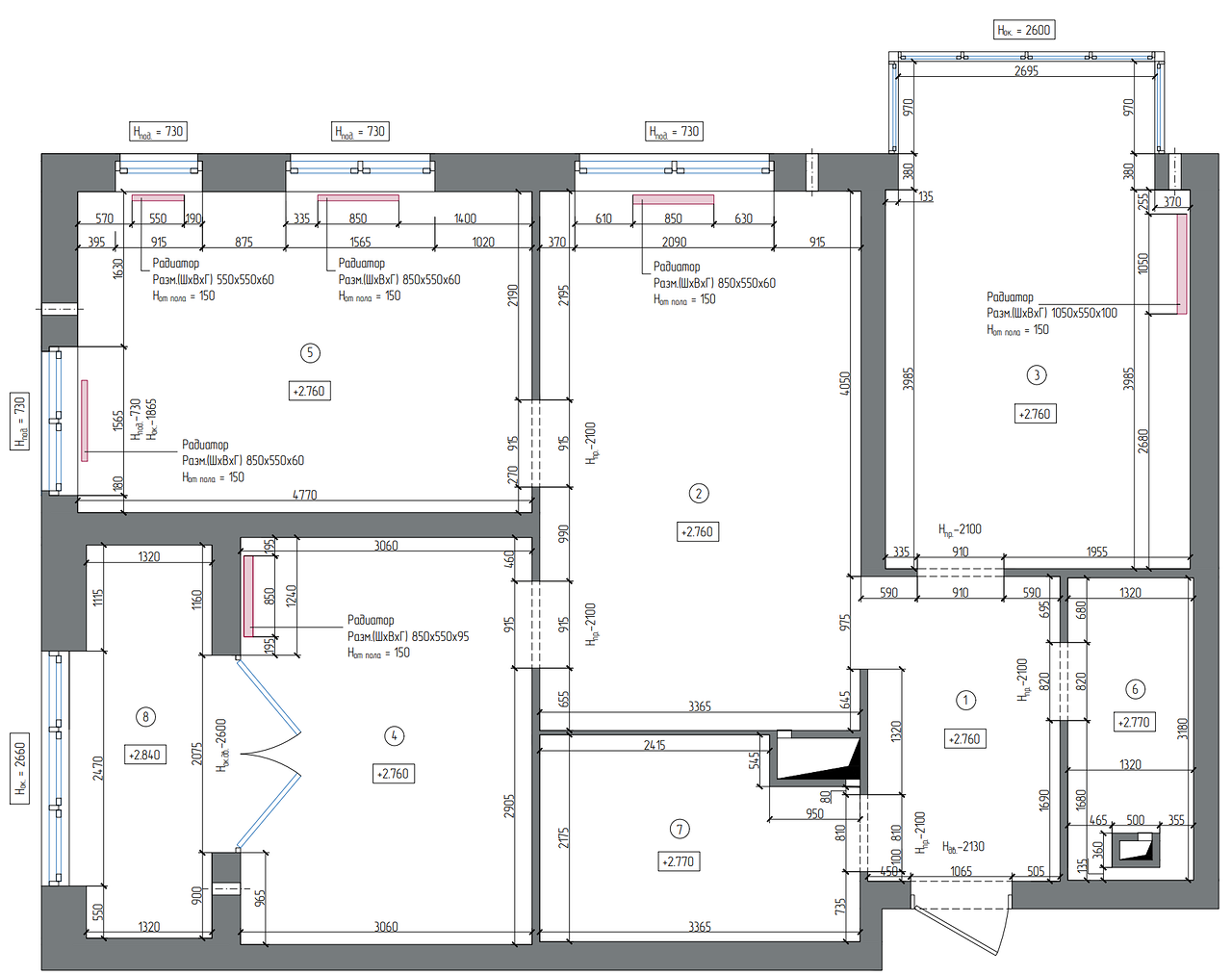
План
Комната Было Стало
Общая площадь 87 м2 84 м2
Жилая площадь 32 м2 32 м2
Количество комнат 3 3
Спальня 16,39 м2 13,83 м2
Редакция предупреждает, что в соответствии с Жилищным кодексом РФ требуется согласование проводимых переустройств и перепланировок.
Авторы
Если это ваш проект, пожалуйста, свяжитесь с нами по адресу ivd@burda.ru, указав в письме ссылку на проект.
Современная классика Квартира 3-комнатная
Комментарии (0)

Пока комментариев нет. Начните обсуждение!