Эффектная квартира на Патриарших для аренды

2-комнатная • 58,6м² • • 24.03.2026

Реализованный проект двухкомнатной квартиры площадью 58,6 м2

Команде дизайн-студии удалось превратить старую квартиру в современное жилье с настроением ретро. Читать далее...

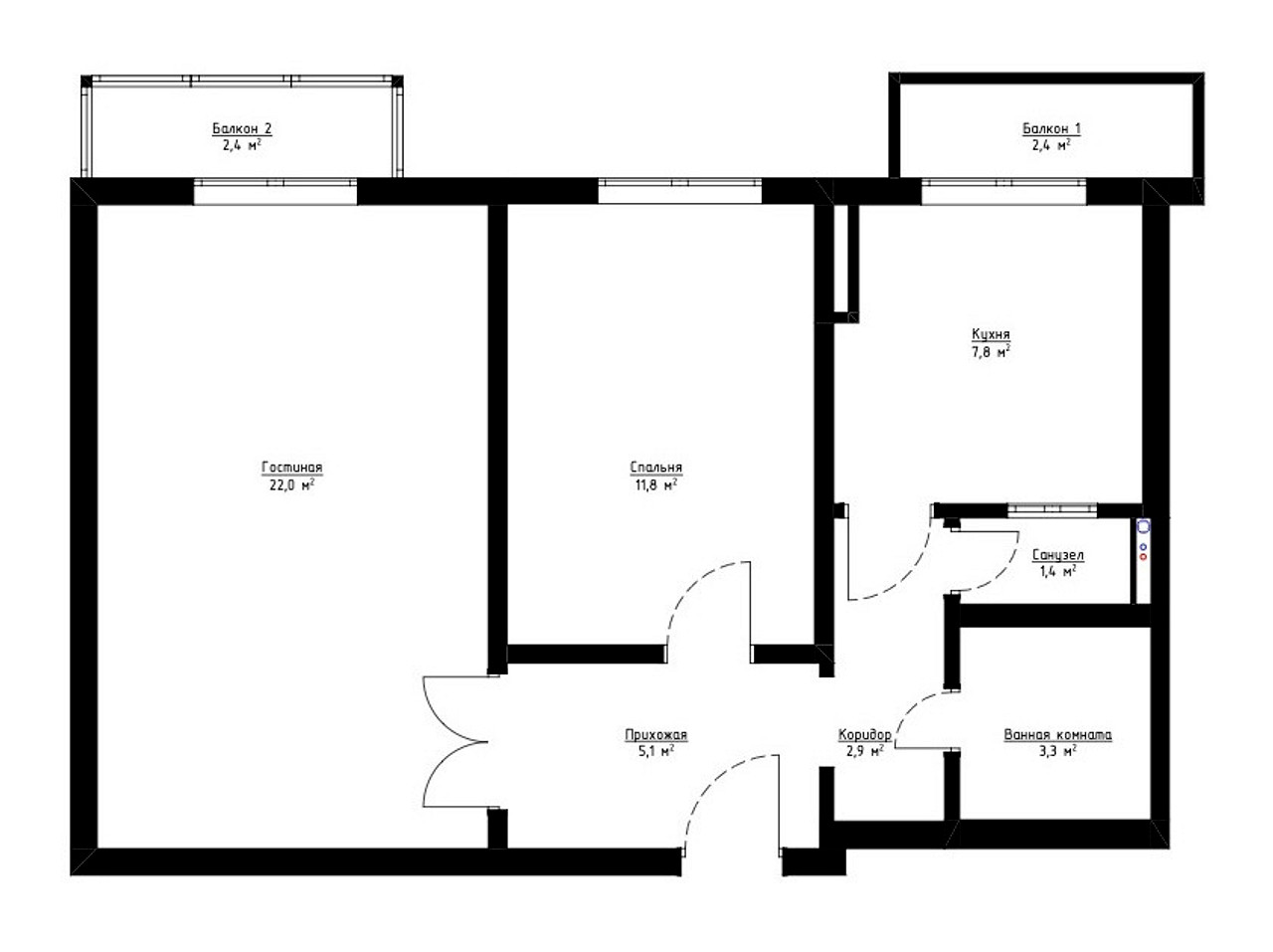
План
Комната Было Стало
Общая площадь 59,1 м2 58,6 м2
Количество комнат 2 2
Высота потолка 2,9 м 2,9 м
Весь объект 58,6 м2
Кухня 7,8 м2
Балкон при кухне 2,4 м2
Гостиная 21,8 м2
Балкон при гостиной 2,4 м2
Спальня 11,8 м2
Ванная комната 3,2 м2
Туалет 1,1 м2
Коридор 3 м2
Прихожая 5,1 м2
Редакция предупреждает, что в соответствии с Жилищным кодексом РФ требуется согласование проводимых переустройств и перепланировок.
Материалы и цвета
Кухня
  • Пол: керамогранит «Керос Керамика»
  • Стены: краска «Мкапэйнт»
  • Фартук: керамогранит Italon
  • Мебель: гарнитур и буфет — компания «Улампек» (на заказ), стулья Stoolgroup
  • Сантехника: мойка Omoikiri, смеситель «Лемарк»
  • Зеркало: factuure.ru
  • Декор: тарелки над гарнитуром «Императорский фарфоровый завод», посуда в буфете и ваза «Иззи Декор»
  • Освещение: подвесной светильник Maytoni
Авторы
Если это ваш проект, пожалуйста, свяжитесь с нами по адресу ivd@burda.ru, указав в письме ссылку на проект.
Фьюжн Квартира Желтые Серые Чёрные и белые 2-комнатная
Комментарии (0)

Пока комментариев нет. Начните обсуждение!