Яркая микрооднушка в доме 1964 года

1-комнатная • 19,6м² • 1-510 • 18.02.2026
Mimosa Interiors Дизайнер

Реализованный проект однокомнатной квартиры площадью 19,6 м2

Квартира находится в доме 1964 года и по площади равна современной студии. Дизайнеру удалось сделать ее функциональной. Читать далее...

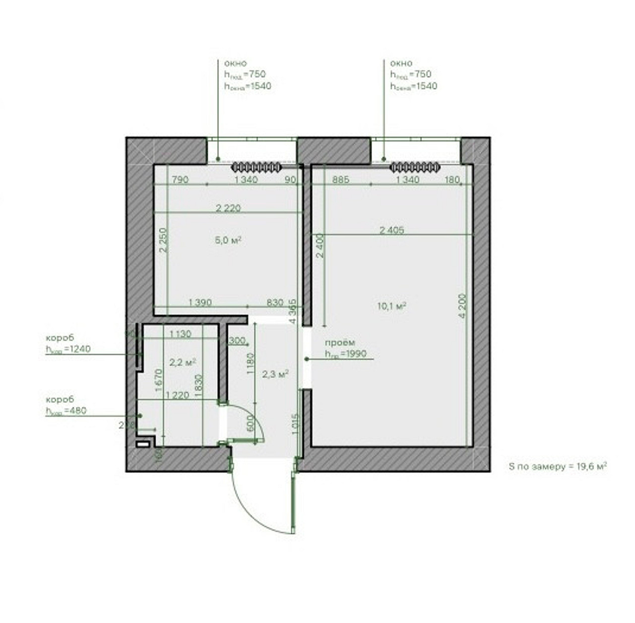
План
Комната Было Стало
Общая площадь 19,6 м2 19,6 м2
Количество комнат 1 1
Высота потолка 2,5 м 2,5 м
Весь объект 19,6 м2
Кухня 5 м2
Спальня 10,1 м2
Ванная комната 2,2 м2
Прихожая 2,3 м2
Редакция предупреждает, что в соответствии с Жилищным кодексом РФ требуется согласование проводимых переустройств и перепланировок.
Материалы и цвета
Весь объект
  • Стены: краска Dulux
  • Двери и плинтусы: Bravo
  • Картины: Полина Черкасова
  • Выключатели и розетки: Schneider Electric
Авторы
Если это ваш проект, пожалуйста, свяжитесь с нами по адресу ivd@burda.ru, указав в письме ссылку на проект.
Современный стиль Квартира Желтые Красные Зелёные Чёрные и белые 1-комнатная
Комментарии (0)

Пока комментариев нет. Начните обсуждение!