Яркая студия с функциями двушки

1-комнатная • 23,2м² • ЖК Kinetik • 28.01.2026

Реализованный проект квартиры-студии площадью 23,2 м2

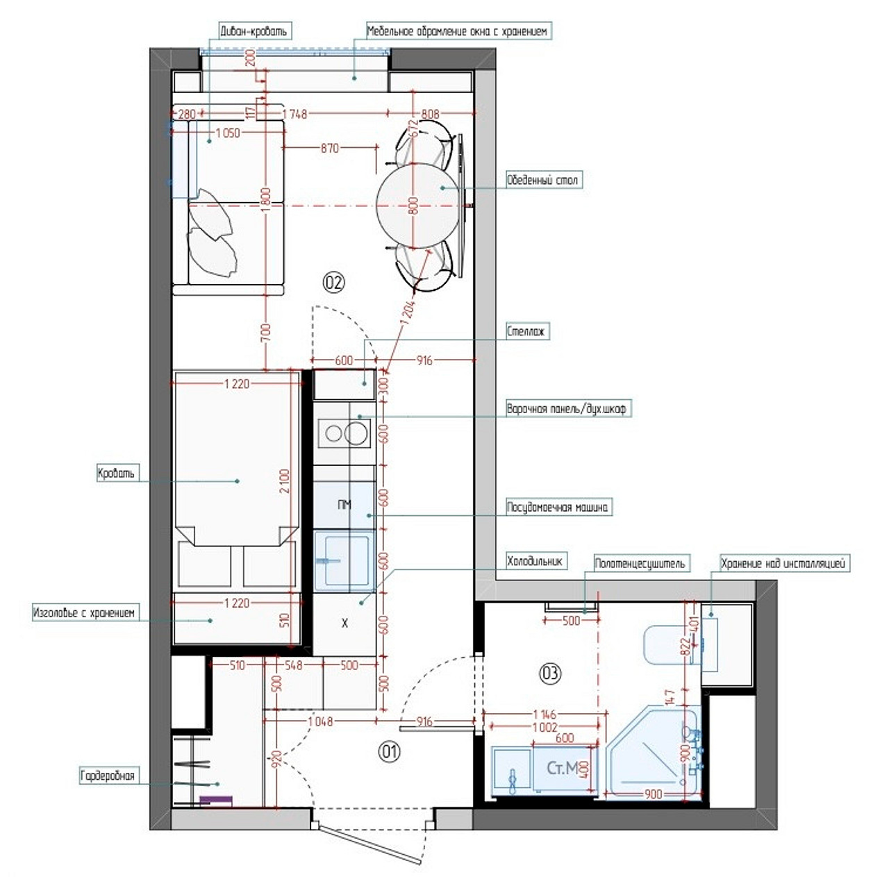
Дизайнеры проявили изобретательность и превратили студию в квартиру с функциями двушки, где есть спальня, зона гостиной и даже гардеробная. Читать далее...

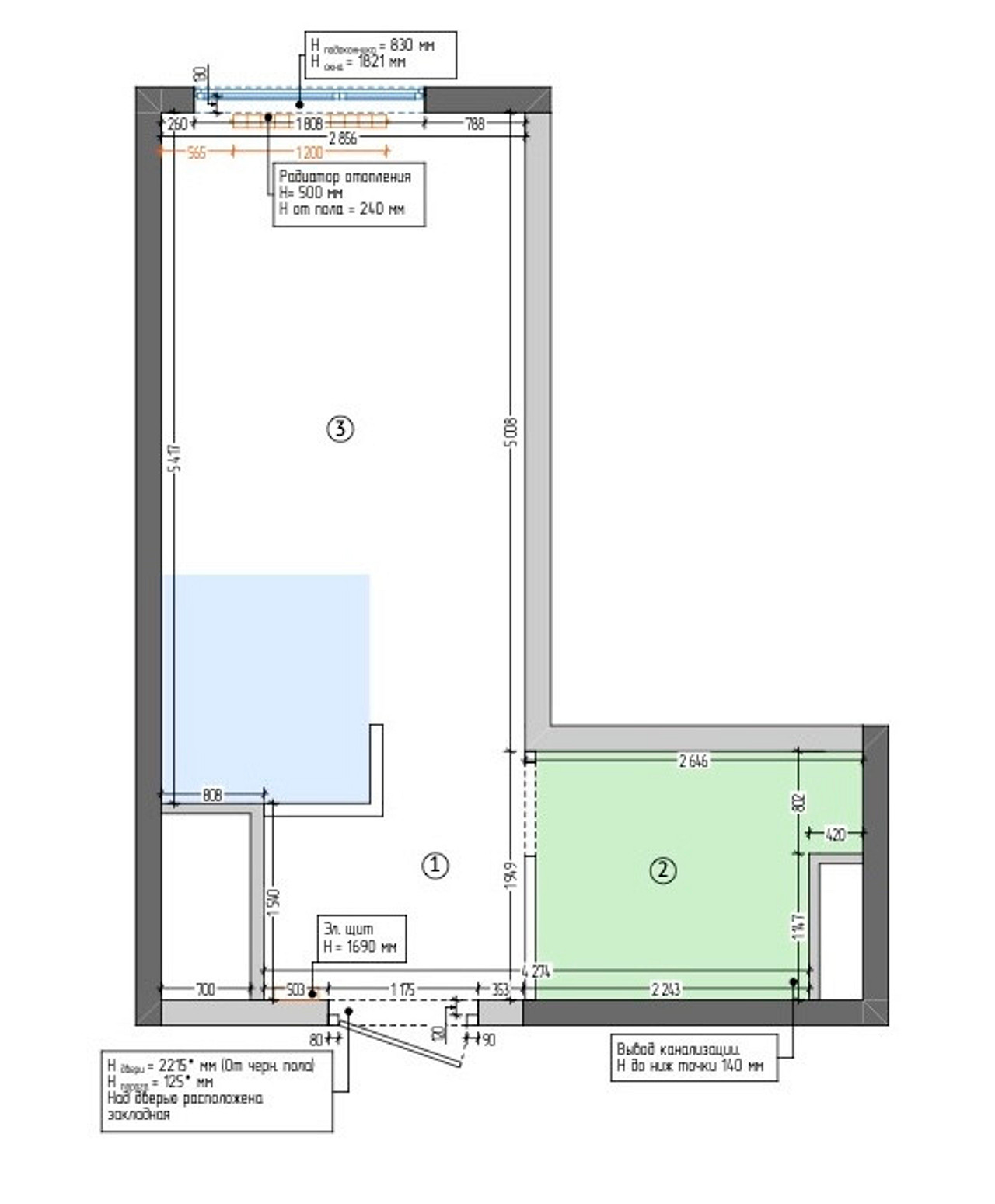
План
Комната Было Стало
Общая площадь 23 м2 23,2 м2
Количество комнат 1 1
Высота потолка 2,7 м 2,7 м
Весь объект 23,2 м2
Комната 15,3 м2
Санузел 4,2 м2
Прихожая 3,8 м2
Редакция предупреждает, что в соответствии с Жилищным кодексом РФ требуется согласование проводимых переустройств и перепланировок.
Материалы и цвета
Весь объект
  • Пол: керамогранит Idalgo, ламинат Unilin
  • Стены: краска Tikkivala
  • Двери: Porta Prima
  • Мебель: корпусная Verno (на заказ), обеденный стол divan.ru, стулья Anni Haus, кровать и диван сделаны на заказ, тумба Brevita
  • Техника: Meferi
  • Сантехника: мойка и смеситель на кухне Omoikiri, душевая перегородка Triton, раковина в санузле San Marko, унитаз и инсталляция Tece
  • Зеркало: «Континент»
  • Освещение: точечные светильники Maytoni, настольная лампа Arlight
  • Оборудование: бризер Ballu
  • Выключатели и розетки: Voltum
Авторы
Если это ваш проект, пожалуйста, свяжитесь с нами по адресу ivd@burda.ru, указав в письме ссылку на проект.
Современный стиль Квартира Красные Синие Серые Чёрные и белые 1-комнатная
Комментарии (0)

Пока комментариев нет. Начните обсуждение!

Похожие перепланировки