Семейный дом «с обложки» в Алма-Ате

Дом • 281,4м² • • 26.01.2026

Реализованный проект двухэтажного загородного дома площадью 281,4 м2 (без учета площади цокольного этажа)

В доме сделали перепланировку для того, чтобы пространство стало удобнее и эргономичнее. Новый интерьер полностью отвечает запросу хозяев — эффектный, но комфортный и уютный. Читать далее...

План
Комната Было Стало
Общая площадь 253,6 м2 281,4 м2
Количество комнат 5 5
Высота потолка 3,2 м
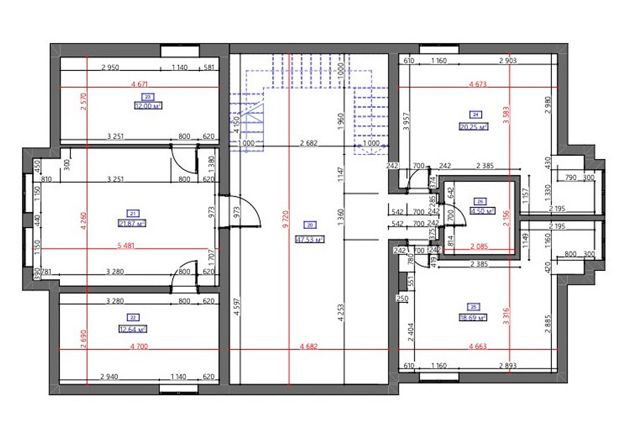
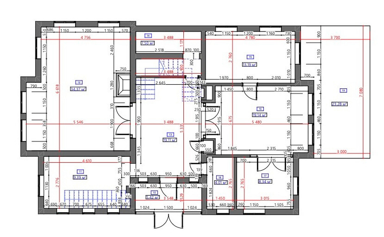
Весь объект 281,4 м2
Тамбур 5,5 м2
Холл в цоколь 9,4 м2
Гостиная 34,4 м2
Столовая 19,1 м2
Кухня 8,3 м2
Гостевая спальня 13,2 м2
Гардеробная за лестницей 7,5 м2
Санузел 4 м2
Холл 19,1 м2
Терраса 23,3 м2
Холл второго этажа 47,5 м2
Мастер-спальня 21,9 м2
Мастер-ванная 12,6 м2
Мастер-гардеробная 12 м2
Детская девочки 20,4 м2
Детская мальчиков 18,7 м2
Детский санузел 4,5 м2
Редакция предупреждает, что в соответствии с Жилищным кодексом РФ требуется согласование проводимых переустройств и перепланировок.
Материалы и цвета
Весь объект
  • Пол: паркет Finnfloor, керамогранит Kerama Marazzi, Tau Ceramic, дерево на террасе Cottage Mode
  • Стены: краска Jotun, RR Decor, декоративные панели Ultrawood, мрамор Stonehead (камин)
  • Двери: входная Staleks, межкомнатные Woodstone, Homeliness.kz, ручки Olivari
  • Мебель: диваны Sits Furniture, комоды и консоли Ashley Furniture, столы, стулья и кресла Mono Concept, пуфы Shuta Decor, Free Style Decor, кухня и корпусная мебель Homeliness.kz, кровати сделаны на заказ
  • Бытовая техника: Smeg
  • Зеркала: Ashley Furniture
  • Декор и текстиль: Shuta Decor, Uttermost, Desiderio Interiors,, картины и текстиль Art.by.Ranato, посуда Noble Almaty
  • Шторы: Valeriya Vavulidi Design
  • Ковры: Carpet Life.kz, Deco Carpets
  • Освещение: Eglo, Shuta Decor
Авторы
Если это ваш проект, пожалуйста, свяжитесь с нами по адресу ivd@burda.ru, указав в письме ссылку на проект.
Современная классика Загородный дом Желтые Красные Чёрные и белые 5-комнатная
Комментарии (0)

Пока комментариев нет. Начните обсуждение!

Похожие перепланировки