Двухуровневая квартира с загородной атмосферой для семьи

3-комнатная • 65.,5м² • ЖК «Сказка» • 29.12.2025
Dasha Kossa Архитектор

Реализованный проект трехкомнатной квартиры площадью 65,5 м2

На исходной площади основного этажа 42 кв. м удалось создать двухуровневое пространство с продуманной эргономикой. Автор проекта «раздвинула стены» не по горизонтали, а по вертикали — за счет второго света и воздушной архитектуры интерьера. Читать далее...

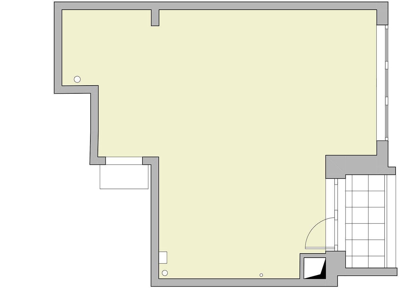
План
Комната Было Стало
Общая площадь 57 м2 65.,5 м2
Количество комнат 1 3
Высота потолка 4,5-7,7 м 2,8 м
Весь объект 65,5 м2
Кухня-столовая 12 м2
Гостиная 19,5 м2
Санузел с душевой 3,7 м2
Прихожая 2,5 м2
Мастер-спальня 12 м2
Гостевая спальня 9 м2
Гардеробная 3,5 м2
Туалет 2,3 м2
Редакция предупреждает, что в соответствии с Жилищным кодексом РФ требуется согласование проводимых переустройств и перепланировок.
Материалы и цвета
Весь объект
  • Двери: Provance
  • Подоконник(и): искусственный камень Two Furni
  • Стены: Orac
  • Мебель: встроенные шкафы Two Furni (по эскизам дизайнера)
  • Оборудование: кондиционеры и радиаторы Guardo
  • Электроустановочные изделия: Legrand
Авторы
Если это ваш проект, пожалуйста, свяжитесь с нами по адресу ivd@burda.ru, указав в письме ссылку на проект.
Современный стиль Квартира Желтые Серые Чёрные и белые 3-комнатная
Комментарии (0)

Пока комментариев нет. Начните обсуждение!