Яркая хрущевка для организатора свадеб в Минске

2-комнатная • 44,1м² • • 16.12.2025

Реализованный проект двухкомнатной квартиры площадью 44,1 м2

Дизайнер создала новый жизнерадостный интерьер квартиры в Минске для девушки, которая организовывает свадьбы. Читать далее...

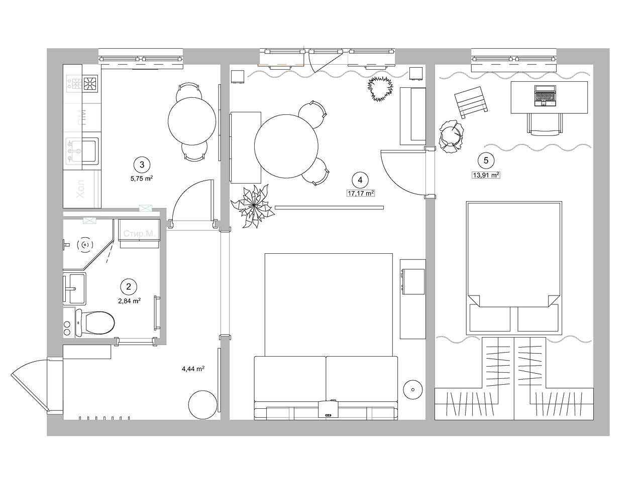
План
Комната Было Стало
Общая площадь 44 м2 44,1 м2
Количество комнат 2 2
Высота потолка 2,5 м 2,5 м
Весь объект 44,1 м2
Кухня 5,8 м2
Гостиная 17,2 м2
Спальня 13,9 м2
Ванная комната 2,8 м2
Коридор 4,4 м2
Редакция предупреждает, что в соответствии с Жилищным кодексом РФ требуется согласование проводимых переустройств и перепланировок.
Материалы и цвета
Весь объект
  • Пол: кварцвинил L’Quarzo, плитка Gayafores, Kerama Marazzi, Cersanit
  • Стены: краска SmartDrop, плитка Mainzu
  • Потолок: натяжной Ferico
  • Фартук: плитка Kerama Marazzi
  • Межкомнатные двери: «Динмар»
  • Мебель: корпусная мебель, диван и банкетка сделаны на заказ, кровать и тумба в гостиной divan.by
  • Сантехника: Rea
  • Картины: в винтажных рамах в гостиной и на кухне — Глория Ран, в спальне и коридоре — Светлана Полидовец
  • Освещение: бра и потолочный светильник в гостиной Lumion, встроенные точечные светильники ST Luce
  • Электроустановочные изделия: Systeme Electric
Авторы
Если это ваш проект, пожалуйста, свяжитесь с нами по адресу ivd@burda.ru, указав в письме ссылку на проект.
Современный стиль Квартира Желтые Красные Зелёные Серые Чёрные и белые 2-комнатная
Комментарии (0)

Пока комментариев нет. Начните обсуждение!