Яркая квартира в панельке для семьи

3-комнатная • 65,4м² • 111-83 • 05.12.2025

Реализованный проект трехкомнатной квартиры площадью 65,4 м2

Квартира для семьи теперь полностью обновлена и радует своих хозяев. Читать далее...

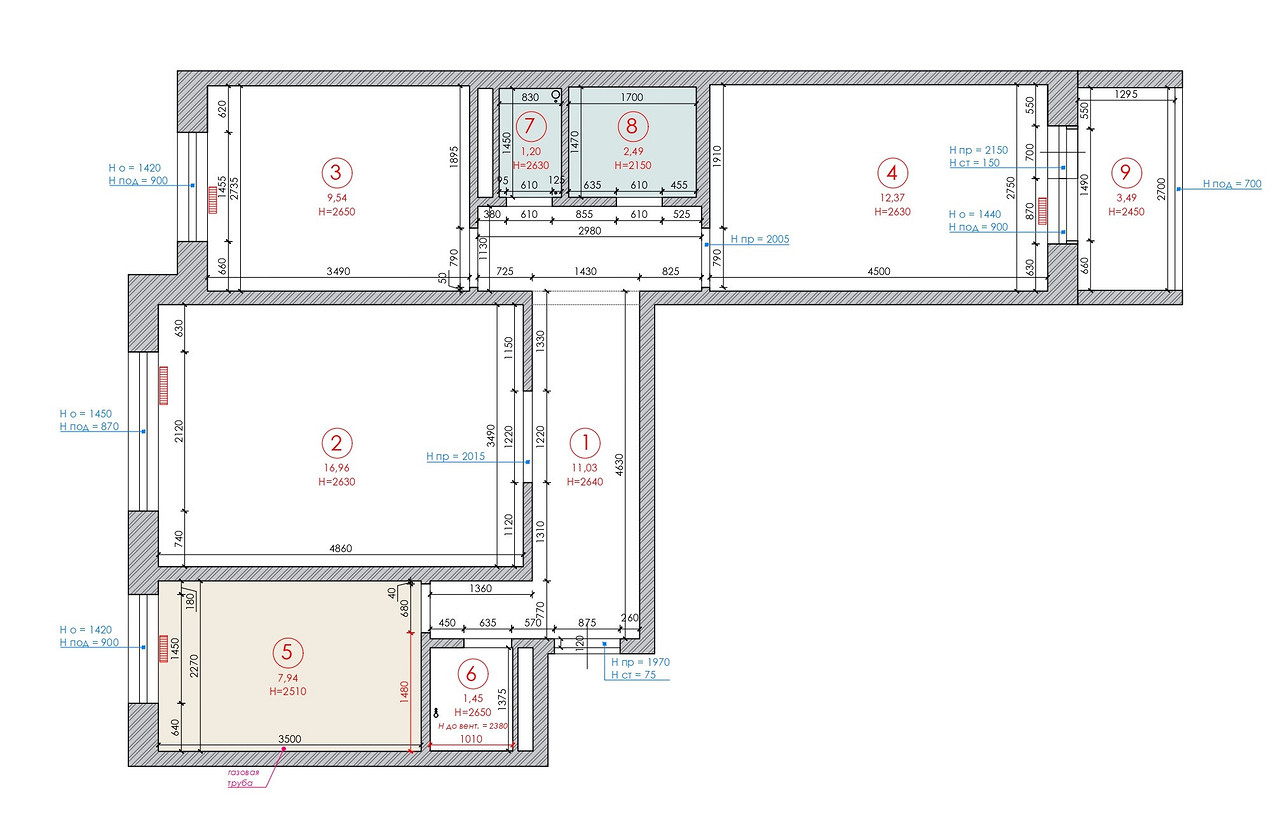
План
Комната Было Стало
Общая площадь 66,5 м2 65,4 м2
Количество комнат 3 3
Высота потолка 2,6 м 2,6 м
Весь объект 65,4 м2
Кухня 7,9 м2
Гостиная 17 м2
Спальня 9,5 м2
Балкон 2,8 м2
Ванная комната 2,5 м2
Туалет 0,9 м2
Кладовая 1,5 м2
Прихожая-коридор 11 м2
Редакция предупреждает, что в соответствии с Жилищным кодексом РФ требуется согласование проводимых переустройств и перепланировок.
Материалы и цвета
Весь объект
  • Пол: кварцвинил AquaFloor
  • Стены: обои Creativille
  • Стены и пол: керамогранит Dual Gres, Equipe, Ragno, Emilсeramica
  • Двери: «Академия дверей»
  • Перегородка(и): раздвижная перегородка Glass Art
  • Мебель: мягкая сделана на заказ в Deli Soft, корпусная сделана на заказ «Рондо», остальная «ОГОГО обстановочка», La Redoute
  • Сантехника: Vitra, Damixa, Wasser, Ceramica Nova, Azario
  • Декор: Aura di Casa, картина над диваном — Ильмира Басырова, панно над кроватью — Artlab Interior
  • Текстиль: декоративные подушки Margo, Алла Тимофеева
  • Ковры: Art De Vivre
  • Освещение: Maytoni
  • Выключатели и розетки: Schneider Electric
Авторы
Если это ваш проект, пожалуйста, свяжитесь с нами по адресу ivd@burda.ru, указав в письме ссылку на проект.
Современный стиль Квартира Желтые Оранжевые Синие Серые 3-комнатная
Комментарии (0)

Пока комментариев нет. Начните обсуждение!