Просторная квартира с яркими акцентами для четверых

4-комнатная • 94,4м² • ЖК «Фестиваль Парк» • 01.12.2025

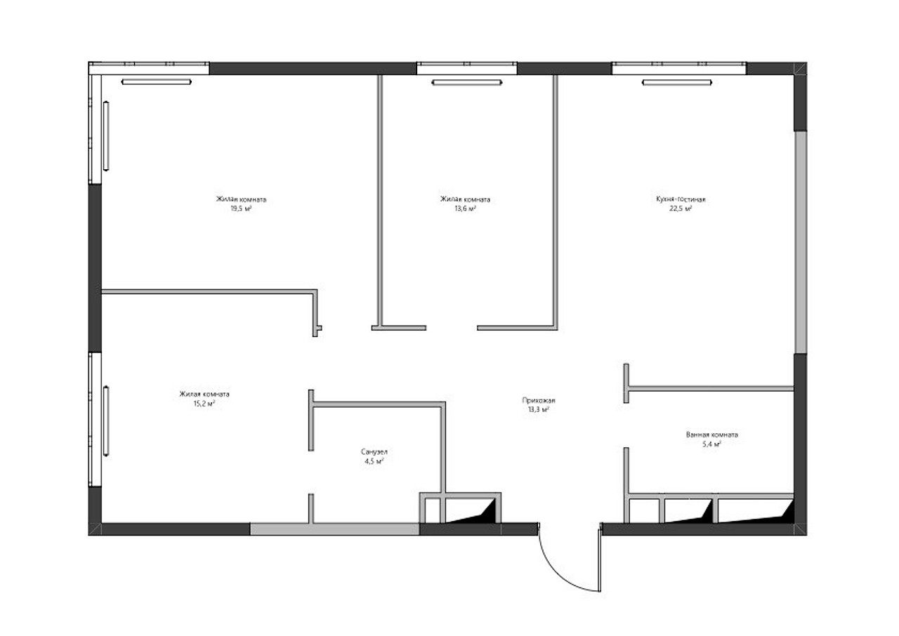
Реализованный проект четырехкомнатной квартиры площадью 94,4 м2

Дизайнер использовала нейтральный фон и яркие акценты для того, чтобы создать эффектный и удобный интерьер для семьи с двумя сыновьями и собакой. Читать далее...

План
Комната Было Стало
Общая площадь 94 м2 94,4 м2
Количество комнат 3 4
Высота потолка 2,9 м 2,9 м
Весь объект 94,4 м2
Кухня 5 м2
Гостиная 28,4 м2
Спальня 12 м2
Гардеробная в спальне 2,5 м2
Детская 1 12,3 м2
Детская 2 12,4 м2
Гардеробная 2,3 м2
Постирочная 3,4 м2
Ванная комната 3,1 м2
Санузел 5,5 м2
Прихожая 7,5 м2
Редакция предупреждает, что в соответствии с Жилищным кодексом РФ требуется согласование проводимых переустройств и перепланировок.
Материалы и цвета
Весь объект
  • Стены: декоративная штукатурка Goldshell, обои Creativille
  • Межкомнатные двери: Dorbex
  • Мебель: корпусная «Ренессанс»
  • Освещение: Maytoni, La Redoute
Авторы
Если это ваш проект, пожалуйста, свяжитесь с нами по адресу ivd@burda.ru, указав в письме ссылку на проект.
Современный стиль Квартира Оранжевые Синие Зелёные Серые Чёрные и белые 4-комнатная
Комментарии (0)

Пока комментариев нет. Начните обсуждение!