Светлая квартира в стиле джапанди для IT-специалиста

1-комнатная • 41,5м² • ЖК «Уникум» • 26.11.2025

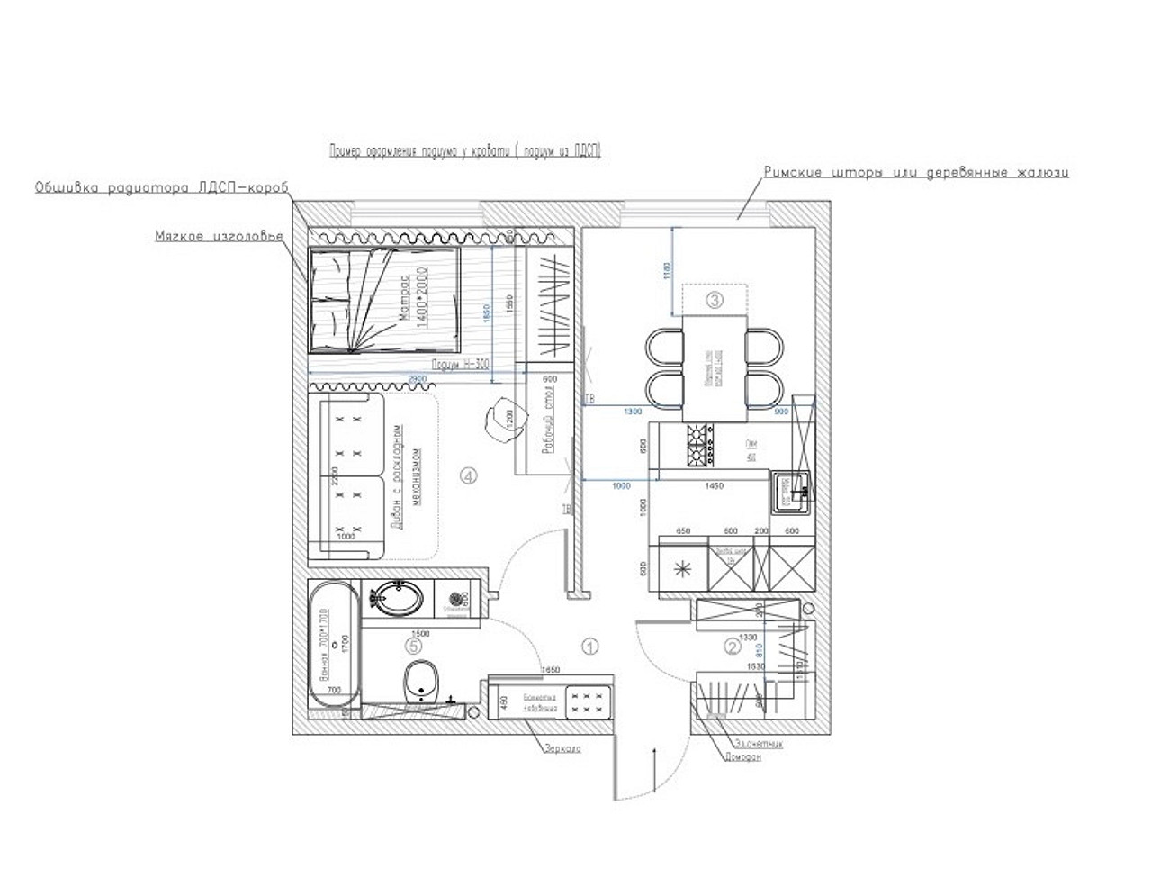
Реализованный проект однокомнатной квартиры площадью 41,5 м2

Дизайнер Аида Прокофьева оформила эту квартиру для своего брата. Для интерьера выбрали модный стиль джапанди. Читать далее...

План
Комната Было Стало
Общая площадь 41,5 м2 41,5 м2
Количество комнат 1 1
Высота потолка 2,7 м 2,7 м
Весь объект 41,5 м2
Кухня 14,6 м2
Спальня 15,9 м2
Гардеробная 2,4 м2
Ванная комната 4,2 м2
Прихожая 4,4 м2
Редакция предупреждает, что в соответствии с Жилищным кодексом РФ требуется согласование проводимых переустройств и перепланировок.
Материалы и цвета
Весь объект
  • Стены и пол: керамогранит Kerama Marazzi
  • Стены: краска mka.paint
  • Лепнина: Decor Dizayn
  • Мебель: журнальный столик и стул Lars
  • Декор: ваза Bakst, картина написана автором проекта Аидой Прокофьевой
  • Ковры: Art De Vivre
  • Освещение: Divinare, Maytoni, бра над кроватью Arte Lamp, настольная лампа Bergenson Bjorn
  • Выключатели и розетки: Donel
Авторы
Если это ваш проект, пожалуйста, свяжитесь с нами по адресу ivd@burda.ru, указав в письме ссылку на проект.
Современный стиль Квартира Желтые Серые Чёрные и белые 1-комнатная
Комментарии (0)

Пока комментариев нет. Начните обсуждение!