Элегантная трешка для многодетной семьи

3-комнатная • 105,2м² • • 25.11.2025

Реализованный проект трехкомнатной квартиры площадью 105,2 м2

Дизайнер оформила интерьер для семьи с тремя мальчиками в стиле американской классики: получился парадный, но при этом функциональный интерьер. Читать далее...

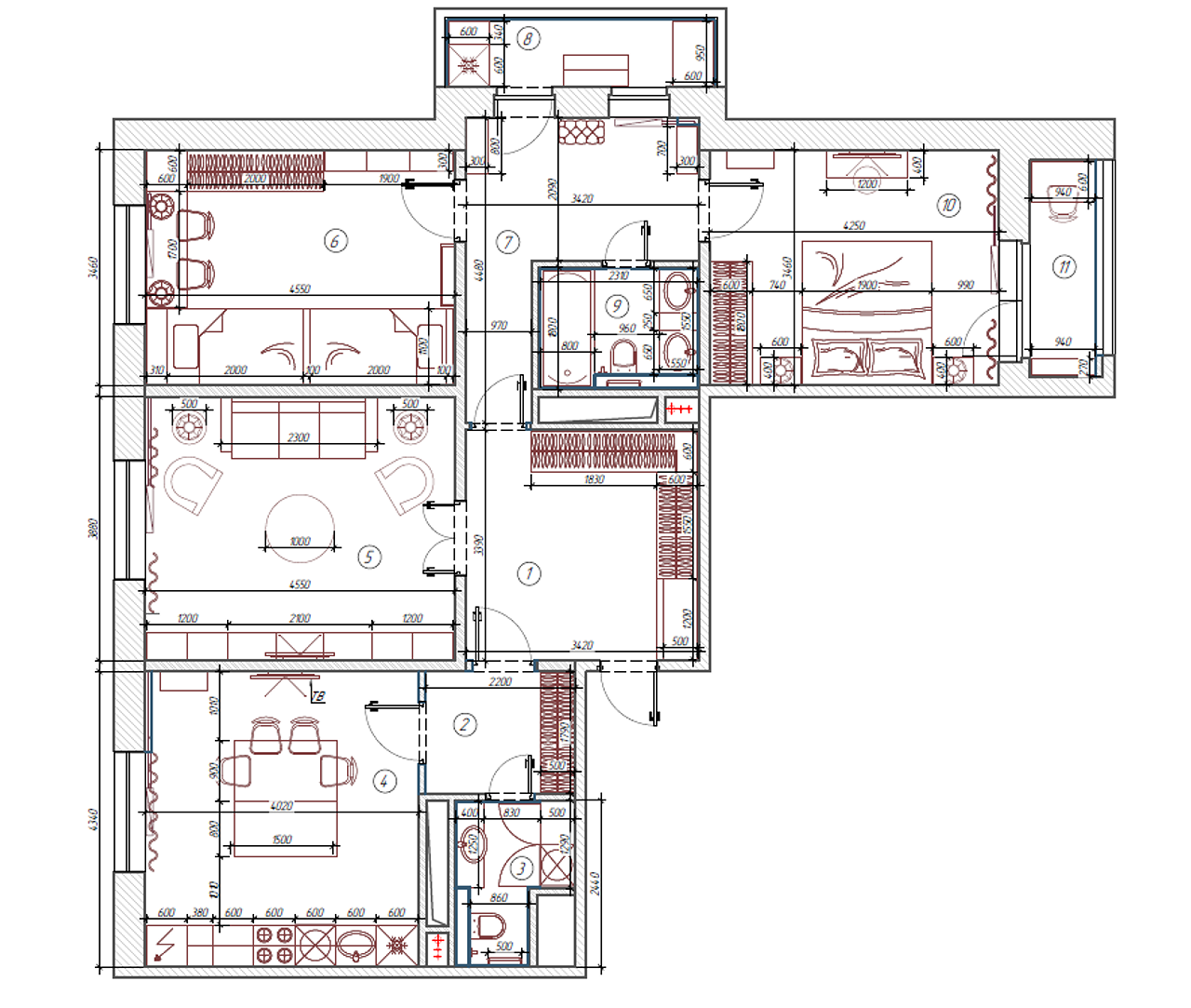
План
Комната Было Стало
Общая площадь 105 м2 105,2 м2
Количество комнат 3 3
Высота потолка 2,8 м 2,8 м
Весь объект 105,2 м2
Кухня 17,4 м2
Гостиная 17,7 м2
Спальня 14,7 м2
Детская 15,7 м2
Балкон 3,9 м2
Лоджия 3,1 м2
Ванная комната 4,2 м2
Постирочная 3,6 м2
Коридор 9,4 м2
Холл 3,9 м2
Прихожая 11,6 м2
Редакция предупреждает, что в соответствии с Жилищным кодексом РФ требуется согласование проводимых переустройств и перепланировок.
Материалы и цвета
Весь объект
  • Пол: плитка Grazia Ceramica, Florim
  • Стены: краска Flugger, плитка Adex
  • Карнизы, плинтусы, молдинги: Orac
  • Двери: «Грант Декор»
  • Фартук: плитка Equipe
  • Мебель: стулья на кухне, акцентные деревянные столики в гостиной и туалетный столик в спальне Dantone Home, диван в гостиной и пуф в холле Full House, стулья в детской СК Дизайн
  • Сантехника: унитаз и раковины Simas, инсталляция Tece, гигиенический душ и смесители Guilini, Hansgrohe, ванна Villeroy&Boch, шторка на ванну Radaway
  • Полотенцесушитель: «Сунержа»
  • Декор и текстиль: аксессуары, текстиль и картины «Иззи Декор», картины Art Lover, постельное белье Ze Home
  • Ковер: kover.ru
Авторы
Если это ваш проект, пожалуйста, свяжитесь с нами по адресу ivd@burda.ru, указав в письме ссылку на проект.
Современная классика Квартира Синие Зелёные Серые Чёрные и белые 3-комнатная
Комментарии (0)

Пока комментариев нет. Начните обсуждение!