Удобная евродвушка для сдачи в аренду

1-комнатная • 41,9м² • ЖК «Фестиваль Парк» • 24.11.2025

Реализованный проект однокомнатной квартиры площадью 41,9 м2

Отличная идея для маленькой квартиры — использовать имеющееся пространство для организации вместительных шкафов. Посмотрите, как это реализовали дизайнеры. Читать далее...

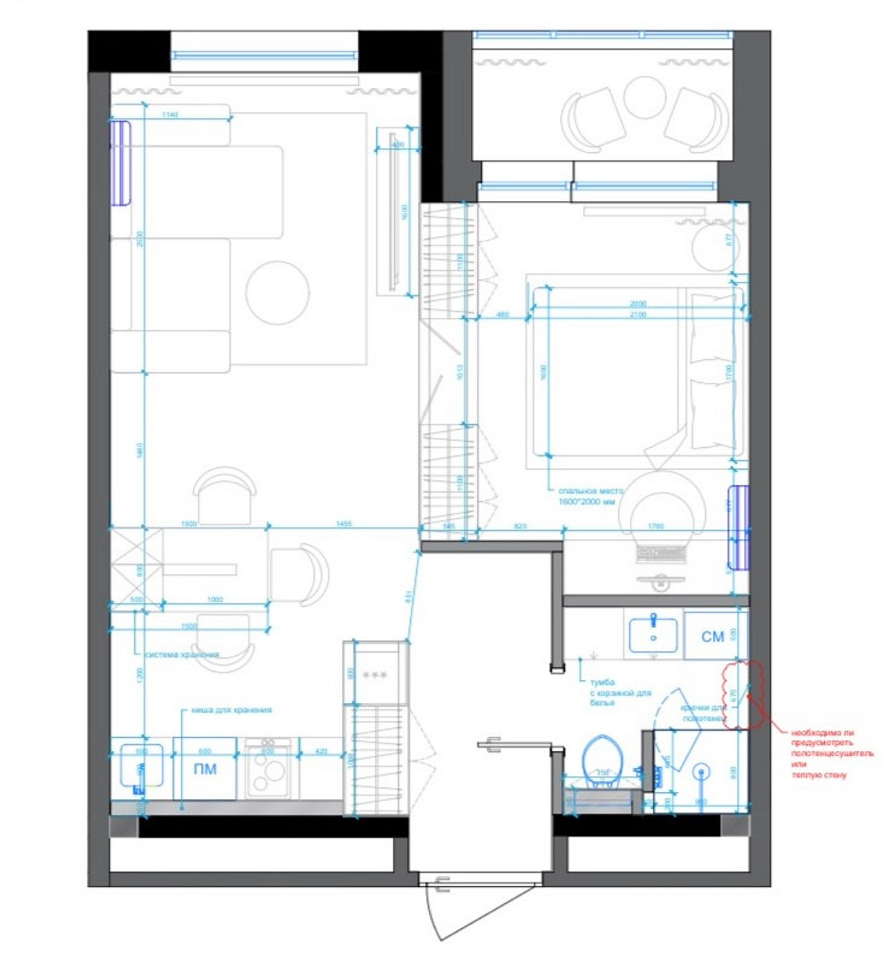
План
Комната Было Стало
Общая площадь 41,8 м2 41,9 м2
Количество комнат 1 1
Высота потолка 3,1 м 3,1 м
Весь объект 41,9 м2
Кухня-гостиная 20,2 м2
Спальня 11 м2
Лоджия 2,7 м2
Ванная комната 3,5 м2
Прихожая 4,7 м2
Редакция предупреждает, что в соответствии с Жилищным кодексом РФ требуется согласование проводимых переустройств и перепланировок.
Материалы и цвета
Весь объект
  • Стены: обои Respace
  • Мебель: корпусная сделана на заказ
  • Освещение: Maytoni, «Электростандарт»
Авторы
Если это ваш проект, пожалуйста, свяжитесь с нами по адресу ivd@burda.ru, указав в письме ссылку на проект.
Современный стиль Квартира Желтые Оранжевые Красные Чёрные и белые 1-комнатная
Комментарии (0)

Пока комментариев нет. Начните обсуждение!