Квартира в сталинке, где соединили классику и современность

2-комнатная • 53,4м² • • 18.11.2025

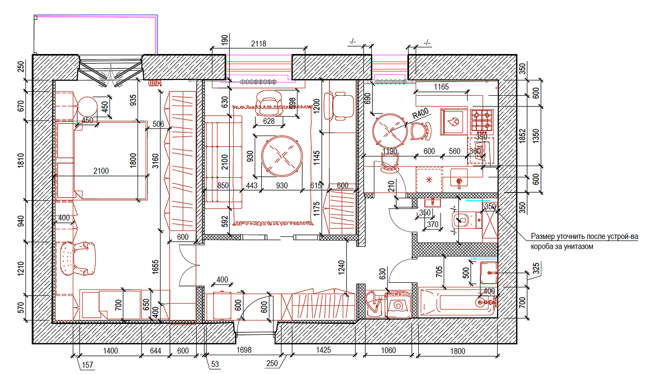
Реализованный проект двухкомнатной квартиры площадью 53,4 м2

Квартира расположена в доме 1958 года постройки. Новые владельцы — семья, на тот момент в ожидании малыша — хотели соединить традиционный стиль, продиктованный экстерьером дома, и современный комфорт. Для чего пригласили специалиста. Читать далее...

План
Комната Было Стало
Общая площадь 53 м2 53,4 м2
Количество комнат 2 2
Весь объект 53,4 м2
Кухня 7,8 м2
Гостиная 12,1 м2
Спальня 17,5 м2
Балкон 2,3 м2
Ванная комната 2,6 м2
Санузел 1,9 м2
Коридор 2,9 м2
Прихожая 6,3 м2
Редакция предупреждает, что в соответствии с Жилищным кодексом РФ требуется согласование проводимых переустройств и перепланировок.
Материалы и цвета
Весь объект
  • Пол: инженерная доска Lab Arte
  • Стены: обои Architector
  • Двери: Verono Doors
  • Мебель: корпусная сделана на заказ, стол на кухне TOK, стулья и диван Dantone Home, кресло в спальне и пуф в прихожей divan.ru
  • Декор: панно над креслом в спальне, картины на полках в прихожей и вазы на кухне Rehome Living, картины на кухне и в гостиной — Татьяна Абрамова, графин и стаканы на кухне L’appartement, столики, вазы и светильник на столе в гостиной Predmety Shop
  • Текстиль: Atelier Tati, плед в гостиной L’appartement
  • Освещение: люстры Maytoni, торшер Predmety Shop
Авторы
Если это ваш проект, пожалуйста, свяжитесь с нами по адресу ivd@burda.ru, указав в письме ссылку на проект.
Современная классика Квартира Желтые Серые Чёрные и белые 2-комнатная
Комментарии (0)

Пока комментариев нет. Начните обсуждение!

Похожие перепланировки