Стильная квартира с атмосферой ретро для семьи
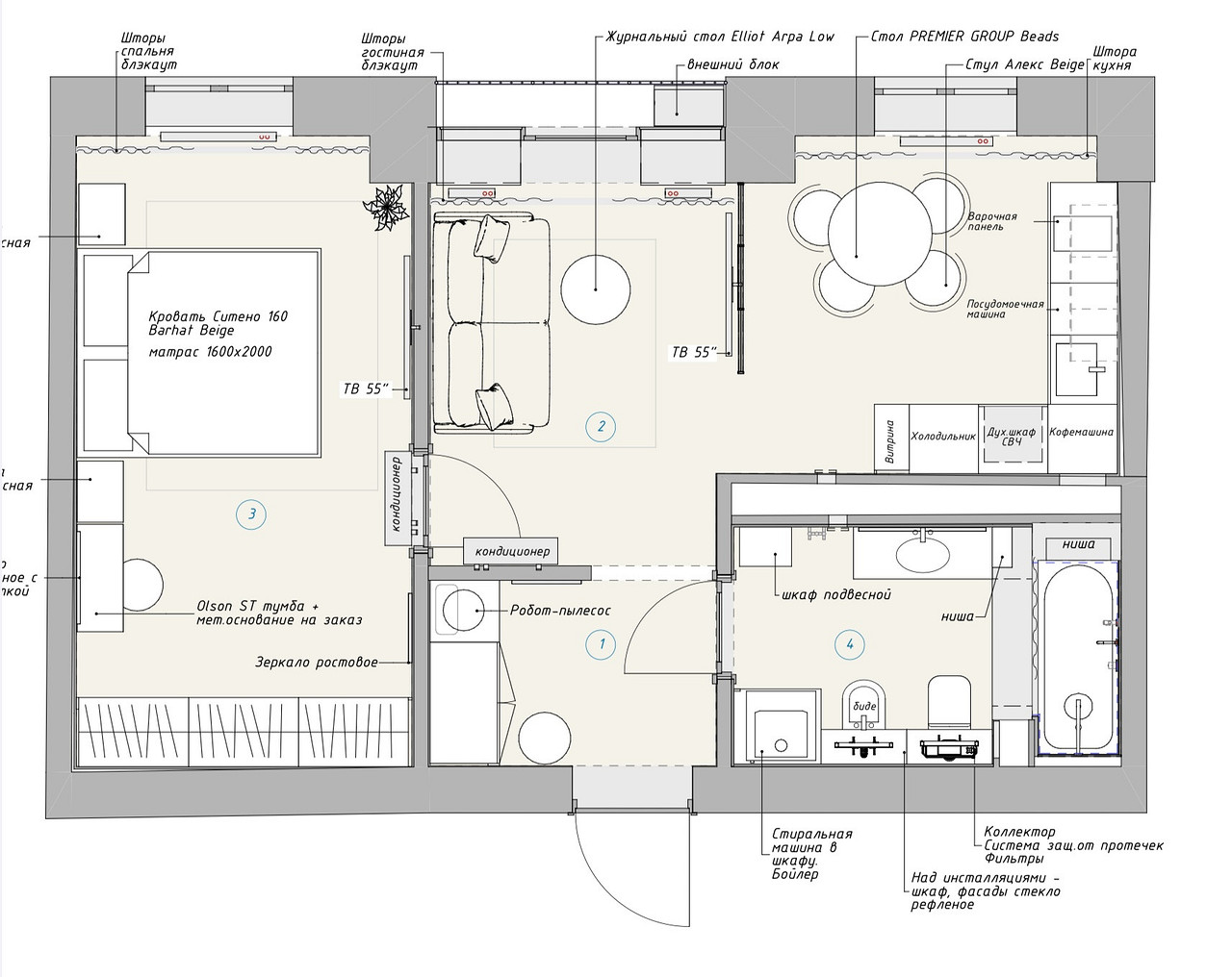
Реализованный проект однокомнатной квартиры площадью 44 м2
Владелец с теплотой вспоминает обстановку в сталинке, в которой жил, будучи ребенком. Эту квартиру он попросил оформить с настроением ретро. Читать далее...

Комната | Было | Стало |
---|---|---|
Общая площадь | 45,3 м2 | 44 м2 |
Количество комнат | 1 | 2 |
Высота потолка | 2,8 м | 2,7 м |
Весь объект | – | 44 м2 |
Кухня-гостиная | – | 18 м2 |
Спальня | – | 15,8 м2 |
Ванная комната | – | 6,2 м2 |
Прихожая | – | 4 м2 |
- Пол: керамогранит APE Ceramica, инженерная доска Unifioors
- Стены: краска Kamenev Group, плитка Equipe
- Двери: «Волховец»
- Фартук: плитка Mainzu
- Мебель: корпусная «Макро мебель» (на заказ), обеденный стол Anni Haus, диван SK Design
- Освещение: споты Maytoni
- Выключатели и розетки: Systeme Electric
Пока комментариев нет. Начните обсуждение!