Легкое дыхание

3-комнатная • • 09.12.2016
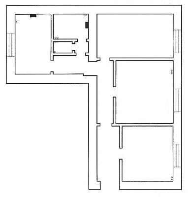
Трехкомнатная квартира общей площадью 84,1м2 в кирпичном сталинском доме. Реализованный проект.
План
Комната Было Стало
Общая площадь 84,1 м2
Жилая площадь 53,4 м2
Количество комнат 3 3
Кухня 10,8 м2
Жилая комната 15,7 м2
Ванная комната 4,2 м2
Туалет 1,1 м2
Прихожая 6,6 м2
Редакция предупреждает, что в соответствии с Жилищным кодексом РФ требуется согласование проводимых переустройств и перепланировок.
Авторы
Если это ваш проект, пожалуйста, свяжитесь с нами по адресу ivd@burda.ru, указав в письме ссылку на проект.
Квартира 3-комнатная
Комментарии (0)

Пока комментариев нет. Начните обсуждение!