Уютный просторный дом для пары, их детей и внуков
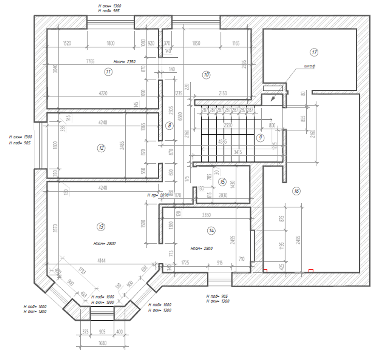
Реализованный проект трехэтажного дома площадью 184,6 м2
Хозяева этого дома — взрослая семейная пара — хотели создать интерьер, где было бы комфортно жить и принимать в гостях детей и внуков. Читать далее...

Комната | Было | Стало |
---|---|---|
Общая площадь | 184,6 м2 | 184,6 м2 |
Количество комнат | 5 | 5 |
Высота потолка | 2,7-3 м | 2,7-3 м |
Весь объект | – | 184,6 м2 |
Прихожая | – | 9 м2 |
Коридор | – | 5,3 м2 |
Санузел на первом этаже | – | 2,8 м2 |
Гостиная | – | 13 м2 |
Кухня-столовая | – | 23,3 м2 |
Лестница | – | 4,2 м2 |
Коридор второго этажа | – | 5,5 м2 |
Лестница на втором этаже | – | 7,1 м2 |
Зона отдыха | – | 9,2 м2 |
Мастер-спальня | – | 18,7 м2 |
Ванная комната | – | 8,4 м2 |
Детская | – | 10,6 м2 |
Санузел на втором этаже | – | 3 м2 |
Бильярдная | – | 35 м2 |
- Пол: паркет Coswick
- Мебель: кухня и гардеробные «ЗОВ», буфет, ТВ-тумба, мебель в санузлах, ванной, прихожей, гостевой и детской сделаны на заказ, кровать «Аскона», тумбочки Inmyroom
- Картины: Анастасия Дурбажева, Яна Повышева, Izzy Decor, Мария Будущих
- Декор: вазы Izzi Decor, Елена Логинова
Пока комментариев нет. Начните обсуждение!