Серия П-44: Визит в гостеприимный дом

2-комнатная • • 09.12.2016
Несколько авторов Свернуть
Мария Киспоева Архитектор, декоратор
Кирилл Бескибалов Архитектор, декоратор
Виталий Болдинов Архитектор, декоратор
Тамара Лобжанидзе Архитектор, декоратор
Кирилл Городов Архитектор, декоратор
Георгий Пряничников Архитектор, декоратор
Михаил Шилов Архитектор, декоратор
Елена Гребенникова Архитектор, декоратор
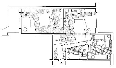
Дизайн-проект перепланировки двухкомнатной квартиры общей площадью 57,8м2 в панельном доме серии П-44.

Пять вариантов перепланировки типовой двухкомнатной квартиры общей площадью 57,8 м2 в доме серии П-44. Читать далее...

План
Комната Было Стало
Общая площадь 57,8 м2
Жилая площадь 33,7 м2
Количество комнат 2 2
Высота потолка 2,64 м
Прихожая-холл 8 м2
Кухня 10,1 м2
Жилая комната 14,8 м2
Ванная комната 3,2 м2
Туалет 1,1 м2
Редакция предупреждает, что в соответствии с Жилищным кодексом РФ требуется согласование проводимых переустройств и перепланировок.
Авторы
Мария Киспоева Архитектор, декоратор
+ 1
Кирилл Бескибалов Архитектор, декоратор
+ 7
Виталий Болдинов Архитектор, декоратор
+ 2
Тамара Лобжанидзе Архитектор, декоратор
+ 1
Кирилл Городов Архитектор, декоратор
+ 5
Георгий Пряничников Архитектор, декоратор
+ 5
Михаил Шилов Архитектор, декоратор
+ 4
Елена Гребенникова Архитектор, декоратор
+ 2
Несколько авторов Свернуть
Если это ваш проект, пожалуйста, свяжитесь с нами по адресу ivd@burda.ru, указав в письме ссылку на проект.
Квартира 2-комнатная
Комментарии (0)

Пока комментариев нет. Начните обсуждение!