Реализованный проект двухкомнатной квартиры площадью 62,5 м2
Дизайнеру было необходимо учесть все пожелания хозяйки, найти баланс между классикой и современностью, чтобы интерьер был актуален как можно дольше. Читать далее...
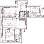
План
| Комната |
Было |
Стало |
| Общая площадь |
63 м2
|
62,5 м2
|
| Количество комнат |
2 |
2 |
| Высота потолка |
2,5 м
|
2,5 м
|
| Весь объект |
– |
62,5 м2 |
| Кухня |
– |
12,7 м2 |
| Гостиная |
– |
12,6 м2 |
| Спальня |
– |
12,5 м2 |
| Гардеробная |
– |
4,1 м2 |
| Балкон |
– |
3,5 м2 |
| Ванная комната |
– |
3,4 м2 |
| Санузел |
– |
0,9 м2 |
| Коридор |
– |
3,7 м2 |
| Прихожая |
– |
9 м2 |
Редакция предупреждает, что в соответствии с Жилищным кодексом РФ требуется согласование проводимых переустройств и перепланировок.
Материалы и цвета
Весь объект
- Пол: ламинат Quick Step
- Стены: краска Tikkurila
- Двери: фабрика «Ока»
- Лепнина: Orac
- Электрофурнитура: Donel
Кухня
- Мебель: кухонный гарнитур — фабрика «Мела», комод, буфет и диван divan.ru
- Декор: картина — Татьяна Чикова, галерея ArtMaley, керамика Mari Dan, Галерея ArtMaley, ERA ceramic, Element Space
- Освещение: люстра, трек и бра Maytoni
Гостиная
- Мебель: журнальный столик Sgib, диван и тумба под ТВ divan.ru, кресло Bobox
- Декор: керамика ERA ceramic
- Ковер: kover.spb.ru
- Текстиль: Josephine Testa
- Освещение: люстра и торшер Maytoni
Спальня
- Стены: обои Milassa
- Мебель: кровать и пуф «Сонум», шкаф — фабрика «Мела»
- Декор: керамика Element Space
- Текстиль: Josephine Testa
- Освещение: люстра и бра Maytoni
Ванная комната
- Стены и пол: плитка Kerama Marazzi
- Мебель: фабрика «Мела»
- Декор: ваза — Наталья Пантюхина, галерея ArtMaley
Прихожая
- Мебель: шкаф — фабрика «Мела», пуф «Сонум»
- Декор: графика — Соня Ворон, керамика Element Space
Цвета
-
Стены
-
Мебель
-
Мебель
-
Стены
-
Двери
Авторы
Если это ваш проект, пожалуйста, свяжитесь с нами по адресу
ivd@burda.ru, указав в письме ссылку на проект.
Пока комментариев нет. Начните обсуждение!