Просторный дом для отдыха большой семьи

Дом • 142,7м² • • 11.11.2024

Реализованный проект двухэтажного загородного дома площадью 142,7 м2

Этот дом построили Яна Алексеева и ее супруг, и он предназначен для отдыха всей семьи, включая бабушек и дедушек. Читать далее...

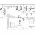
План
Комната Было Стало
Общая площадь 142,7 м2 142,7 м2
Количество комнат 5 5
Весь объект 142,7 м2
Прихожая 5,2 м2
Гостиная 29,3 м2
Кухня 16,5 м2
Лестница 7 м2
Кабинет 10,1 м2
Санузел на первом этаже 6,3 м2
Сауна 3,9 м2
Котельная 5,9 м2
Холл второго этажа 11,8 м2
Санузел на втором этаже 7 м2
Спальня дизайнера 18 м2
Спальня родителей дизайнера 12,2 м2
Спальня свекрови 9,6 м2
Редакция предупреждает, что в соответствии с Жилищным кодексом РФ требуется согласование проводимых переустройств и перепланировок.
Материалы и цвета
Весь объект
  • Двери: «Юкка»
  • Декор: подбор живописи — Валерия Жизнякова, искусствовед, галерея Art&Brut
Авторы
Если это ваш проект, пожалуйста, свяжитесь с нами по адресу ivd@burda.ru, указав в письме ссылку на проект.
Скандинавский стиль Загородный дом Желтые Красные Синие Чёрные и белые 5-комнатная
Комментарии (0)

Пока комментариев нет. Начните обсуждение!