Квартира в ЖК GOLDEN CITY, 34 м.кв.
Разработка дизайн-проекта однокомнатной квартиры в ЖК GOLDEN CITY, г.Санкт-Петербург.
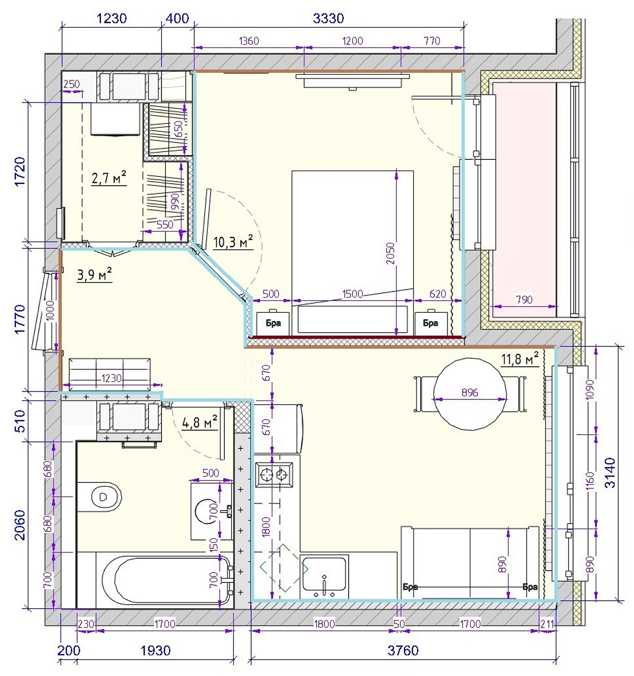
                | Комната | Было | Стало | 
|---|---|---|
| Общая площадь | 34 м2 | 34 м2 | 
| Жилая площадь | 17 м2 | 17 м2 | 
| Количество комнат | 1 | 1 | 
| Гостиная-кухня | 11,8 м2 | 11,8 м2 | 
| Прихожая | 3,9 м2 | 3,9 м2 | 
| Спальня | 10,3 м2 | 10,3 м2 | 
| Гардеробные | 2,7 м2 | 2,7 м2 | 
| Санузел | 4,8 м2 | 4,8 м2 | 
                                    
                                
                                    
                                
                                    
                                
                                    
                                
                                    
                                
                                    
                                
                                    
                                
                                    
                                
                                    
                                
                                    
                                
                                    
                                
            
                        
                        
                        
                        
                        
                        
                        
                        
                        
                        
                        
                        
                        
                        
                        
                        
                        
                        
                        
                        
                        
                                
                                
                                
                                
                                
                                
                                
                                
                                
                                
                                
                                
                                
                                
                                
                                
                                
                                
                                
                                
                                
                
            
            
            
                
            
                
            
Пока комментариев нет. Начните обсуждение!