Серия П-3М: Дом, в котором всегда уютно

4-комнатная • П-3М • 09.12.2016
Несколько авторов Свернуть
Кирилл Городов Архитектор, декоратор
Георгий Пряничников Архитектор, декоратор
Михаил Шилов Архитектор, декоратор
Татьяна Котелевская Архитектор, декоратор
Мария Киспоева Архитектор, декоратор
Елена Караваева Архитектор, декоратор
Юлия Барденкова Архитектор, декоратор
Андрей Пекашев Архитектор, декоратор
Алла Алферова Архитектор, декоратор
Дизайн-проект перепланировки четырехкомнатной квартиры общей площадью 109м2 в панельном доме серии П-3М.

Восемь вариантов перепланировки четырехкомнатной квартиры общей площадью 108,2 м2 в панельном доме серии П-3М. Читать далее...

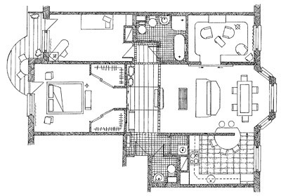
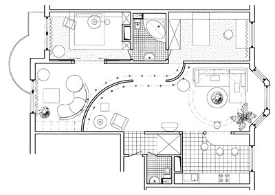
План
Комната Было Стало
Общая площадь 108,2 м2
Жилая площадь 72,6 м2
Количество комнат 4 4
Высота потолка 2,64 м
Прихожая 5,2 м2
Холл 8,6 м2
Кухня 13,3 м2
Комната 21,2 м2
Ванная комната 3,2 м2
Гостевой санузел 2,5 м2
Редакция предупреждает, что в соответствии с Жилищным кодексом РФ требуется согласование проводимых переустройств и перепланировок.
Авторы
Кирилл Городов Архитектор, декоратор
+ 5
Георгий Пряничников Архитектор, декоратор
+ 5
Михаил Шилов Архитектор, декоратор
+ 4
Татьяна Котелевская Архитектор, декоратор
+ 1
Мария Киспоева Архитектор, декоратор
+ 1
Елена Караваева Архитектор, декоратор
Юлия Барденкова Архитектор, декоратор
+ 3
Андрей Пекашев Архитектор, декоратор
+ 1
Алла Алферова Архитектор, декоратор
+ 3
Несколько авторов Свернуть
Если это ваш проект, пожалуйста, свяжитесь с нами по адресу ivd@burda.ru, указав в письме ссылку на проект.
Квартира 4-комнатная
Комментарии (0)

Пока комментариев нет. Начните обсуждение!