Двухкомнатная квартира в башне Вулыха: Стены долой!

1-комнатная • Башня Вулыха • 09.12.2016
Несколько авторов Свернуть
Кирилл Бескибалов Руководитель мастерской
Юлия Барденкова Архитектор, декоратор
Юрий Барденков Архитектор, декоратор
Людмила Волкова Архитектор, декоратор
Елена Гребенникова Архитектор, декоратор
Елена Першина Архитектор, декоратор
Петр Новиков Архитектор, декоратор
Олег Соловьёв Архитектор, декоратор
Неля Макарова Архитектор, декоратор
Юрий Хайков Архитектор, декоратор
Алина Жданова Архитектор, декоратор
Алла Алферова Архитектор, декоратор
Дизайн-проект перепланировки двухкомнатной квартиры общей площадью 53м2 в кирпичной башне Вулыха.

Десять вариантов перепланировки двухкомнатной квартиры общей площадью 53,02 м2 в кирпичной башне Вулыха. Читать далее...

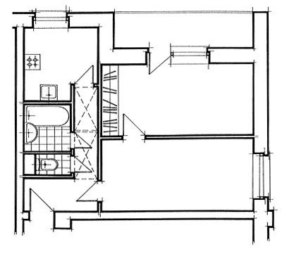
План
Комната Было Стало
Общая площадь 53,02 м2
Жилая площадь 35,52 м2
Количество комнат 2 1
Высота потолка 2,7 м
Прихожая 3,78 м2
Кухня 8,74 м2
Жилая комната 18,08 м2
Ванная комната 2,4 м2
Туалет 1,2 м2
Лоджия 5,9 м2
Редакция предупреждает, что в соответствии с Жилищным кодексом РФ требуется согласование проводимых переустройств и перепланировок.
Авторы
Кирилл Бескибалов Руководитель мастерской
+ 7
Юлия Барденкова Архитектор, декоратор
+ 3
Юрий Барденков Архитектор, декоратор
+ 2
Людмила Волкова Архитектор, декоратор
Елена Гребенникова Архитектор, декоратор
+ 2
Елена Першина Архитектор, декоратор
Петр Новиков Архитектор, декоратор
+ 1
Олег Соловьёв Архитектор, декоратор
Неля Макарова Архитектор, декоратор
Юрий Хайков Архитектор, декоратор
Алина Жданова Архитектор, декоратор
+ 3
Алла Алферова Архитектор, декоратор
+ 3
Несколько авторов Свернуть
Если это ваш проект, пожалуйста, свяжитесь с нами по адресу ivd@burda.ru, указав в письме ссылку на проект.
Квартира 1-комнатная
Комментарии (0)

Пока комментариев нет. Начните обсуждение!