Современная Испания в однушке под Петербургом

1-комнатная • 38,69м² • Санкт-Петербург • ЖК «Петровский Парк» • 2024 • 07.04.2026

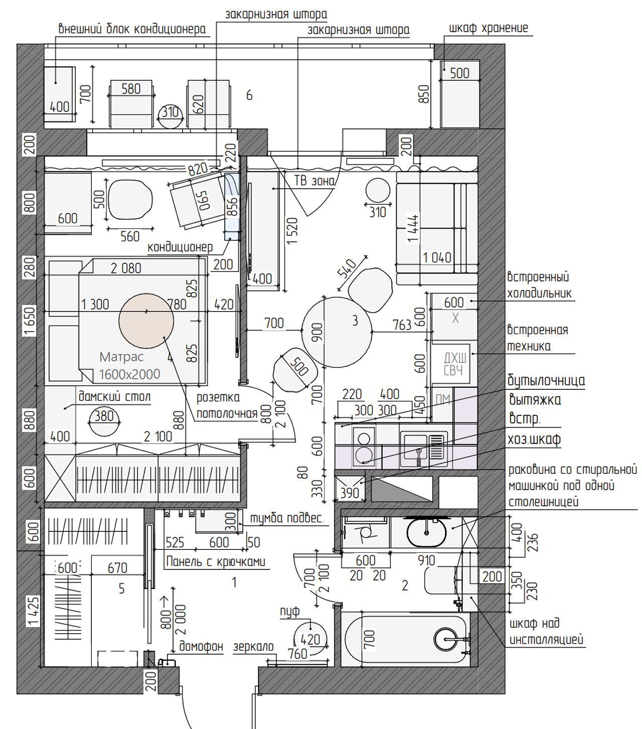
Заказчик: девушка. Бюджет на мебель и материалы: 3,5 млн. рублей. Сроки на проект: 40 рабочих дней. Задачи: планирования пространства, распределение зон хранения.

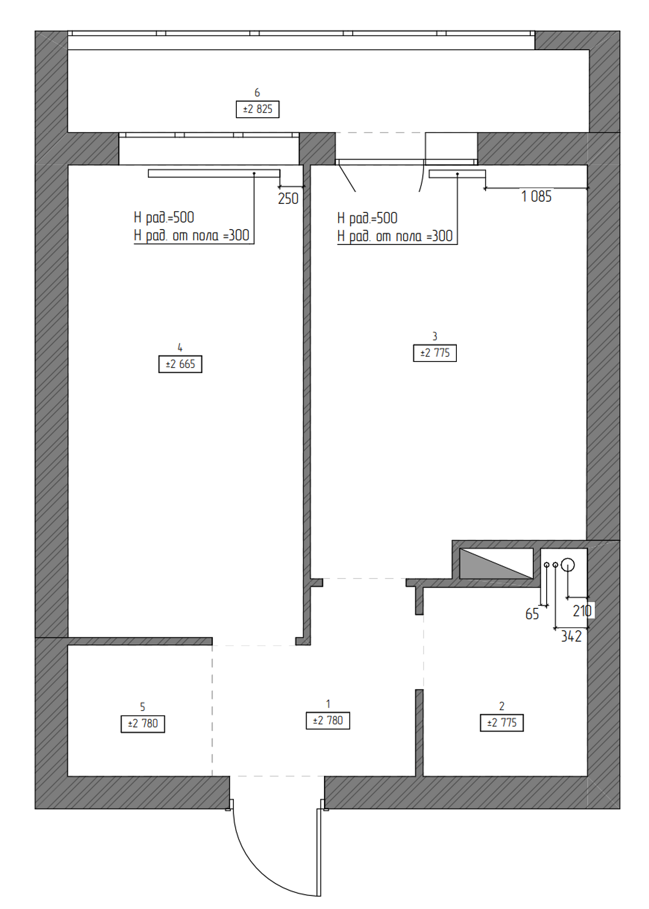
План
Комната Было Стало
Общая площадь 39,53 м2 38,69 м2
Жилая площадь 12,61 м2 11,05 м2
Количество комнат 1 1
Спальня 12,61 м2 11,05 м2
Редакция предупреждает, что в соответствии с Жилищным кодексом РФ требуется согласование проводимых переустройств и перепланировок.
Авторы
Если это ваш проект, пожалуйста, свяжитесь с нами по адресу ivd@burda.ru, указав в письме ссылку на проект.
Классический стиль Квартира 1-комнатная
Комментарии (0)

Пока комментариев нет. Начните обсуждение!