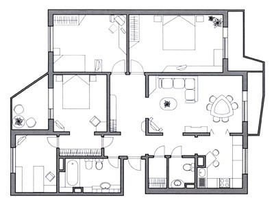
Присоединяй и властвуй: Минимальная перепланировка
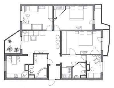
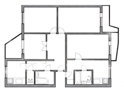
Однокомнатная (36,4 м2) и трехкомнатная (73,8 м2) квартиры, образующие блок-секцию в доме серии

Комната | Было | Стало |
---|---|---|
Общая площадь | 110,2 м2 | 110 м2 |
Жилая площадь | 63,7 м2 | 75,87 м2 |
Количество комнат | 4 | 5 |
Высота потолка | 2,8 м | – |
Прихожая | 1,1 м2 | 6,9 м2 |
Холл | 7,5 м2 | 7,23 м2 |
Коридор | 3,9 м2 | – |
Кухня | 8,4 м2 | 8,7 м2 |
Гостиная | 11,1 м2 | – |
Спальня | 18,9 м2 | 18,9 м2 |
Ванная комната | 2,2 м2 | 6,7 м2 |
Туалет | 1,7 м2 | – |
Балкон | 3,8 м2 | 3,8 м2 |
Жилая комната | 18,9 м2 | – |
Санузел | 4,1 м2 | 2,6 м2 |
Гостиная-столовая | – | 18,9 м2 |
Детская | – | 14,8 м2 |
Кабинет | – | 8,37 м2 |
Кладовая | – | 2 м2 |
Пока комментариев нет. Начните обсуждение!