Яркая и удобная квартира для семьи в Москве

4-комнатная • 91,9м² • ЖК «Ты и я» • 25.01.2024

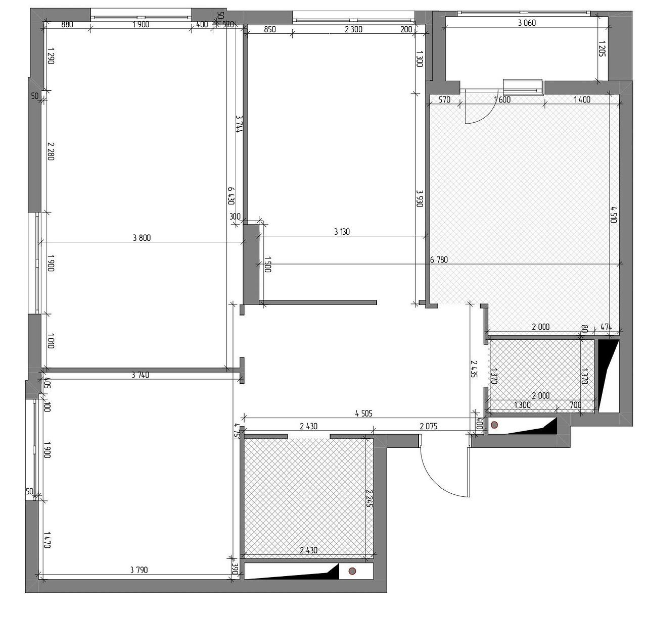
Реализованный проект четытрехкомнатной квартиры площадью 91,9 м2

Спальня, кабинет, две детские и зона гостиной в уютной кухне. Кроме этого, выделили гардеробную и сохранили два санузла! Теперь у семьи есть свой дом, из которого не хочется уходить.  Читать далее...

План
Комната Было Стало
Общая площадь 91,9 м2 91,9 м2
Количество комнат 3 4
Высота потолка 2,7 м 2,7 м
Весь объект 91,9 м2
Кухня-гостиная 17,3 м2
Спальня 13,1 м2
Детская 1 12,7 м2
Детская 2 11,8 м2
Кабинет 8,2 м2
Балкон 3,2 м2
Кладовая 2 м2
Ванная комната 6 м2
Санузел 2,5 м2
Прихожая 15,1 м2
Редакция предупреждает, что в соответствии с Жилищным кодексом РФ требуется согласование проводимых переустройств и перепланировок.
Материалы и цвета
Весь объект
  • Пол: кварцвинил Kahrs
  • Стены: краска Dulux, обои в детских Marburg, панно в детских «Креативилль»
  • Стены и пол: плитка Marca Corona, Equipe, Azteca, Tubadzin
  • Двери: «Академия дверей»
  • Окна: «ДекоР-Студия»
  • Мебель: встроенная мебель «Шкафулькин», мягкая мебель OlleoPrellucci, стулья на кухне divan.ru
  • Техника: Liebherr, Bosch
  • Сантехника: AM.PM, Cersanit, Weltwasser, раковина на кухне Omoikiri
  • Декор и текстиль: Loft Concept, подушки и вазы Chiaro Home, картины в спальне и кухне-гостиной — Ольга Полюшкина
  • Ковры: kover.ru
  • Освещение: основное (точечные и треки) SWG, люстры Loft It (Light for You), Eglo, Maytoni, KINK Light
Авторы
Если это ваш проект, пожалуйста, свяжитесь с нами по адресу ivd@burda.ru, указав в письме ссылку на проект.
Современный стиль Квартира Желтые Красные Синие Зелёные 4-комнатная
Комментарии (0)

Пока комментариев нет. Начните обсуждение!

Похожие перепланировки