Объединение квартир в доме серии П-44: Стремление к комфорту

5-комнатная • • 09.12.2016
Несколько авторов Свернуть
Ирина Барышева Архитектор, декоратор
Петр Новиков Архитектор, декоратор
Елена Стегнова Архитектор, декоратор
Владимир Орел Архитектор, декоратор
Кирилл Бескибалов Архитектор, декоратор
Анна Сергеева Архитектор, декоратор
Алла Алферова Архитектор, декоратор
Александр Данилов Архитектор, декоратор
Екатерина Сметанина Архитектор, декоратор
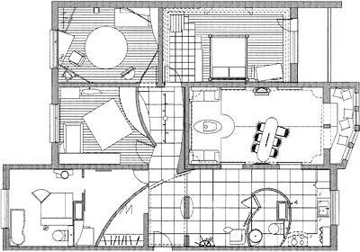
Дизайн-проект перепланировки блока одно- и трехкомнатной квартир общей площадью 111,6м2

Семь вариантов перепланировки объединенных одно- и трехкомнатной квартир в типовом панельном доме серии П-44. Читать далее...

План
Комната Было Стало
Общая площадь 111,6 м2
Жилая площадь 63,7 м2
Количество комнат 4 5
Высота потолка 2,64 м
Прихожая-холл 7,5 м2
Прихожая 6,5 м2
Кухня 8,4 м2
Жилая комната 18,9 м2
Редакция предупреждает, что в соответствии с Жилищным кодексом РФ требуется согласование проводимых переустройств и перепланировок.
Авторы
Ирина Барышева Архитектор, декоратор
+ 3
Петр Новиков Архитектор, декоратор
+ 1
Елена Стегнова Архитектор, декоратор
+ 2
Владимир Орел Архитектор, декоратор
Кирилл Бескибалов Архитектор, декоратор
+ 7
Анна Сергеева Архитектор, декоратор
Алла Алферова Архитектор, декоратор
+ 3
Александр Данилов Архитектор, декоратор
+ 1
Екатерина Сметанина Архитектор, декоратор
+ 1
Несколько авторов Свернуть
Если это ваш проект, пожалуйста, свяжитесь с нами по адресу ivd@burda.ru, указав в письме ссылку на проект.
Квартира 5-комнатная
Комментарии (0)

Пока комментариев нет. Начните обсуждение!