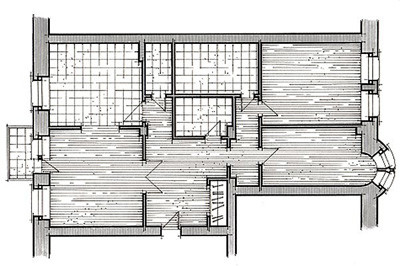
Четырехкомнатная квартира общей площадью 128,9м2 в исторической части Санкт-Петербурга. Реализованный проект.
Четырехкомнатная квартира общей площадью 128,9 м2 в исторической части Санкт-Петербурга. Рациональная перепланировка, изменившая прямоугольную форму помещений. Читать далее...
План
| Комната |
Было |
Стало |
| Общая площадь |
128,9 м2
|
128,9 м2
|
| Жилая площадь |
|
71 м2
|
| Количество комнат |
4 |
4 |
| Высота потолка |
3,1 м
|
–
|
Редакция предупреждает, что в соответствии с Жилищным кодексом РФ требуется согласование проводимых переустройств и перепланировок.
Материалы и цвета
Прихожая-холл
- Стены: плиты гипсолитовые, «ВЕТОНИТ», краска Tikkurila
- Пол: плитка керамическая RAGNO
- Потолок: гипсокартон Тиги Knauf
- Светильники: светильники точечные
- Мебель: плетеная мебель LORD, шкафы встроенные Elfa International
Гардеробная
- Стены: плиты гипсолитовые, «ВЕТОНИТ», краска Tikkurila
- Потолок: гипсокартон Тиги Knauf
- Пол: плитка керамическая RAGNO
- Светильники: светильники точечные
- Мебель: шкафы встроенные Elfa International
Гостиная
- Стены: плиты гипсолитовые, «ВЕТОНИТ», краска Tikkurila
- Потолок: гипсокартон Тиги Knauf
- Пол: паркет буковый Karelia
- Мебель: диваны Natuzzi
- Оборудование: радиаторы алюминиевые Calidor
Кухня
- Стены: плиты гипсолитовые, «ВЕТОНИТ», краска Tikkurila
- Потолок: гипсокартон Тиги Knauf
- Пол: плитка керамическая Marazzi
- Оборудование: радиаторы алюминиевые Calidor, смесители Grohe, встроенная техника Smeg, холодильник Bosch
- Мебель: кухня NOVART OY
Кабинет
- Стены: плиты гипсолитовые, «ВЕТОНИТ», краска Tikkurila
- Потолок: гипсокартон Тиги Knauf
- Пол: паркет буковый Karelia
- Оборудование: радиаторы алюминиевые Calidor
Гостевой санузел
- Стены: плиты гипсолитовые, плитка керамическая Marazzi
- Пол: плитка керамическая Marazzi
- Сантехника: унитаз Ido, смесители Grohe
Холл
- Стены: плиты гипсолитовые, «ВЕТОНИТ», краска Tikkurila
- Потолок: гипсокартон Тиги Knauf
- Светильники: светильники точечные
- Пол: паркет буковый Karelia
- Мебель: шкафы встроенные Elfa International
Прачечная
- Стены: плиты гипсолитовые, «ВЕТОНИТ», краска Tikkurila
- Светильники: светильники точечные
- Пол: плитка керамическая Marazzi
Ванная комната
- Стены: плиты гипсолитовые, плитка керамическая Marazzi
- Пол: теплый пол DEVI, плитка керамическая Marazzi
- Сантехника: ванна Teuco, душевая кабина Teuco, унитаз Ido, смесители Grohe
- Мебель: -none-
Спальня
- Стены: плиты гипсолитовые, «ВЕТОНИТ», краска Tikkurila
- Потолок: гипсокартон Тиги Knauf
- Пол: паркет буковый Karelia
- Оборудование: радиаторы алюминиевые Calidor
- Мебель: шкаф POKER MODERNO, гарнитур спальный EIVE
Детская
- Стены: плиты гипсолитовые, «ВЕТОНИТ», краска Tikkurila
- Потолок: гипсокартон Тиги Knauf
- Пол: паркет буковый Karelia
- Оборудование: радиаторы алюминиевые Calidor
Авторы
Если это ваш проект, пожалуйста, свяжитесь с нами по адресу
ivd@burda.ru, указав в письме ссылку на проект.
Пока комментариев нет. Начните обсуждение!