Дизайн интерьера двухкомнатной квартиры
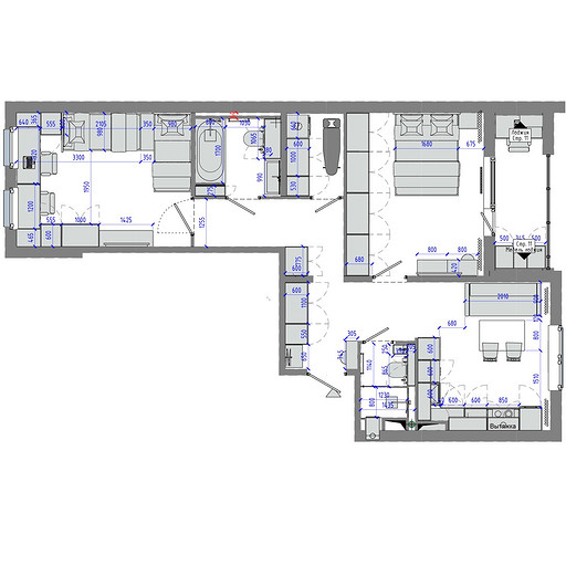
Наши Клиенты — интеллигентная семья молодых научных работников с двумя детьми, которые купили просторную двухкомнатную квартиру в новостройке в ближайшем пригороде в Санкт-Петербурга. Изначально в наши задачи входило: Продумать грамотное планировочное решение: хозяева дали добро на перепланировку в случае необходимости. Разместить полноценный кухонный гарнитур со всей современной техникой, поскольку хозяйка считает, что домашнее питание очень важно для здоровья всех членов семьи, то времени на кухне будет проводить много. Организовать два отдельных полноценных независимых санузла для наибольшего удобства. Рабочее место разместить на лоджии, для этого там уже произведена замена холодного остекления на теплое. Организовать в помещении кладовой отдельную гардеробную. В прихожей обязательно установить вместительные системы хранения и большую морозильную камеру для трофеев с охоты, которой увлекается супруг.. Создать комфортное пространство для игр и учебы в детской с учетом взросления двух мальчишек. .

Комната | Было | Стало |
---|---|---|
Общая площадь | 73,9 м2 | 73,9 м2 |
Жилая площадь | 40,5 м2 | 40,5 м2 |
Количество комнат | 3 | 3 |
Гостиная | 13,6 м2 | 13,6 м2 |
Пока комментариев нет. Начните обсуждение!